房地产
房产中介
装修
新房
当前位置:
首页
>
新房
>今天分享3套三开间现代别墅!
今天分享3套三开间现代别墅!
2025-12-24 19:59:36
今天分享3套三开间现代别墅!
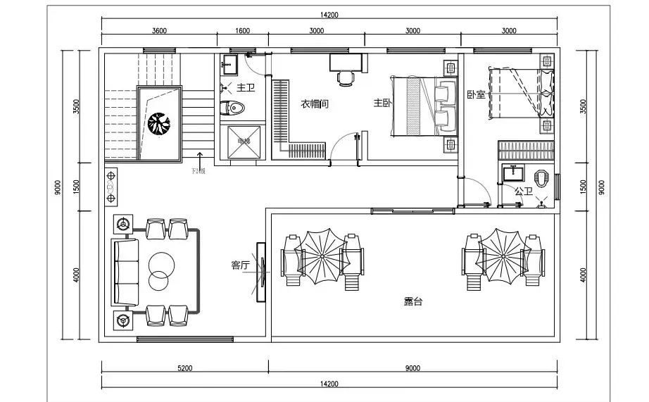
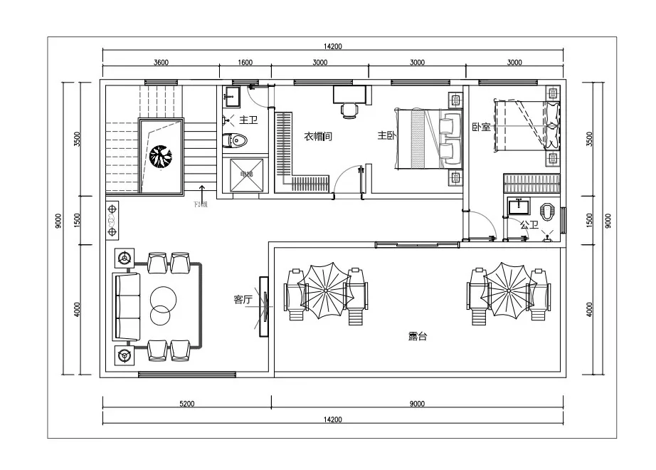
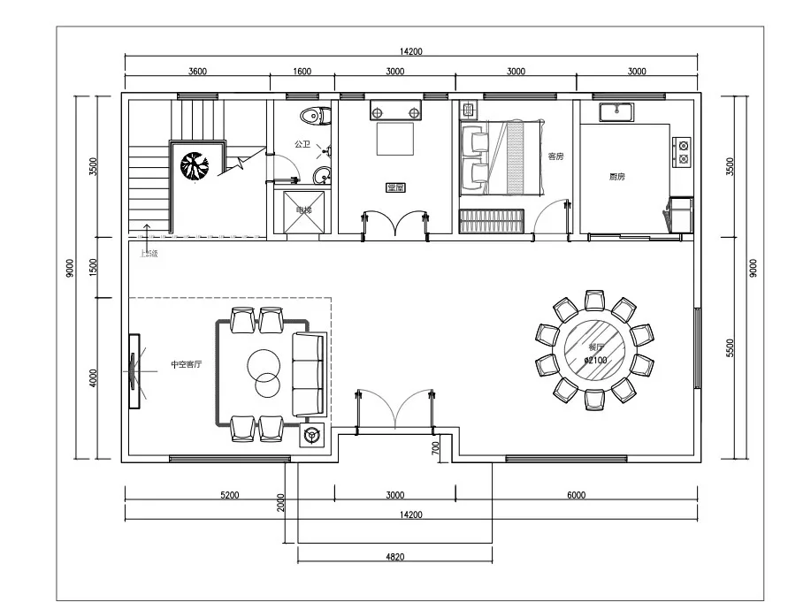
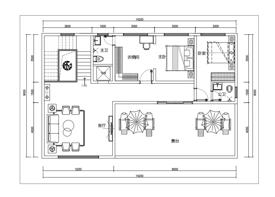
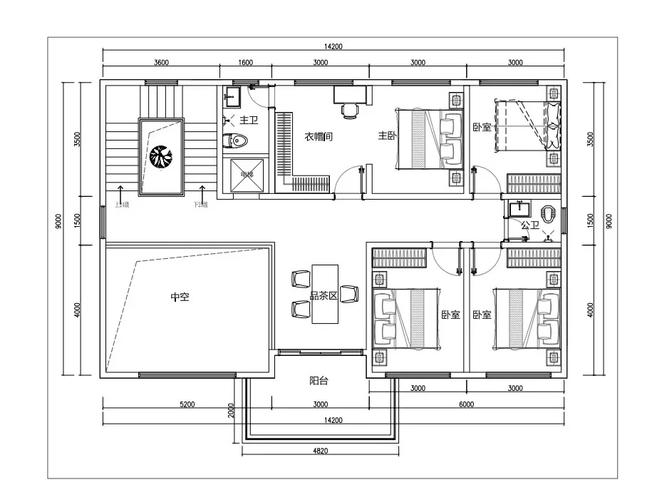
今天分享3套三开间现代别墅!面宽12米也能盖出大宅感,第2套让老爸戒了麻将(天天蹲新房)
**❶ 面宽12米=显小?**
邻居嘲笑我家像“窄条房”!后来才知道:
✅ **窗墙比>40%**(落地窗+竖厅设计)
✅ **取消传统堂屋**→改横向客厅(视觉暴增2倍!)
**❷ 爸妈坚持的‘对称楼梯’毁所有!**
老人非要楼梯居中,结果切割客厅!补救方案:
🔥 **侧边旋转楼梯**(省6㎡+打造挑空书房)
🔥 **钢架玻璃踏板**(通透感让爹妈闭嘴)
**❸ 二楼露台变‘漏水重灾区’**
防水没做双坡度!暴雨后墙面发霉…
💡 **必抄作业:**
- 结构找坡+防水层 **斜向双排水**
- 瓷砖缝填 **环氧彩砂**(贵但10年不渗)
**❹ 现代风=不实用?**
爷爷吐槽没檐廊晒不了菜!神操作:
☀️ **南向折叠雨棚露台**(收起来不违建)
☀️ **屋顶隐形晾衣绳**(美观度拉满)
**❺ 造价刺客竟是‘线条装饰’!**
罗马柱+外墙雕花烧掉5万!平替方案:
✂️ **用EPS泡沫造型**(远看效果一样,省3万)
✂️ **竖向铝板分缝**(低成本高级感密码)
#农村自建房设计
#别墅避坑指南
#现代风别墅
#装修干货
本文来自网友投稿或网络内容,如有侵犯您的权益请联系我们删除,联系邮箱:wyl860211@qq.com 。
装修党狂喜!海尔和悦603冰箱新品爆料
装修小白别慌!这套底价单直接拿去用❗
最新文章
装修党狂喜!海尔和悦603冰箱新品爆料
卖房之路Step3-开始与中介的合作与斗争
武汉收房记✨保姆级流程+仪式感拉满太治愈!
普通人装修|小白必备超实用装修App分享!!
您在买二手房中是不是遇到很多不专业的中介
还是喜欢洋房~ 首钢园新房洋房 520拿下
破防的卖房中介
❗️个人避坑帖❗️手把手教你怎么挑中介
装修进度中,柜子装好啦
“房屋买卖合同”含中介版,强烈推荐
热门文章
目前威海在售的新房项目一览
买二手房,房屋中介你选对了吗?
静安寺🌿嘉园2号13A层装修3年,保养较高
🎈找中介买房必须知道的那些事儿❗️
装修害怕被宰❓这些材料一定要自己买👋
房子卖了两年才卖掉,被中介坑惨了!
一定要多找几个中介!
装修让我明显感觉到了信息茧房的恐怖😅
槐荫区73万精装现房108平大三室,首付10万
中介带我看房后,我想找别的中介买可以吗?
随机文章
10个月宝宝每天需要喝多少奶粉?
装修党必看!海尔和悦603冰箱新品首发
天伦湾 璞悦东方
装修党狂喜!海尔和悦603冰箱新品首发
邯郸新房 天伦湾 璞玥东方
济南装修|为什么不推荐低价套餐⁉️
如何买房?有两个流派,一个是新房流,二是
欧美金融城旁|95㎡三房242万!精装修含车位
只会降价卖房😠还要你们中介干什么❓
千万豪装修独栋别墅,全屋采用国外进口材料
拿到房产证啦❗️
基本
文件
流程
错误
SQL
调试
请求信息 : 2025-12-24 22:46:22 HTTP/2.0 GET : https://rcgz.com.cn/a/458210.html
运行时间 : 0.202841s [ 吞吐率:4.93req/s ] 内存消耗:4,148.95kb 文件加载:140
缓存信息 : 0 reads,0 writes
会话信息 : SESSION_ID=e20b703101c2148aad6e10985784d993
/yingpanguazai/ssd/ssd1/www/no.rcgz.com.cn/public/index.php ( 0.79 KB )
/yingpanguazai/ssd/ssd1/www/no.rcgz.com.cn/vendor/autoload.php ( 0.17 KB )
/yingpanguazai/ssd/ssd1/www/no.rcgz.com.cn/vendor/composer/autoload_real.php ( 2.49 KB )
/yingpanguazai/ssd/ssd1/www/no.rcgz.com.cn/vendor/composer/platform_check.php ( 0.90 KB )
/yingpanguazai/ssd/ssd1/www/no.rcgz.com.cn/vendor/composer/ClassLoader.php ( 14.03 KB )
/yingpanguazai/ssd/ssd1/www/no.rcgz.com.cn/vendor/composer/autoload_static.php ( 4.90 KB )
/yingpanguazai/ssd/ssd1/www/no.rcgz.com.cn/vendor/topthink/think-helper/src/helper.php ( 8.34 KB )
/yingpanguazai/ssd/ssd1/www/no.rcgz.com.cn/vendor/topthink/think-validate/src/helper.php ( 2.19 KB )
/yingpanguazai/ssd/ssd1/www/no.rcgz.com.cn/vendor/topthink/think-orm/src/helper.php ( 1.47 KB )
/yingpanguazai/ssd/ssd1/www/no.rcgz.com.cn/vendor/topthink/think-orm/stubs/load_stubs.php ( 0.16 KB )
/yingpanguazai/ssd/ssd1/www/no.rcgz.com.cn/vendor/topthink/framework/src/think/Exception.php ( 1.69 KB )
/yingpanguazai/ssd/ssd1/www/no.rcgz.com.cn/vendor/topthink/think-container/src/Facade.php ( 2.71 KB )
/yingpanguazai/ssd/ssd1/www/no.rcgz.com.cn/vendor/symfony/deprecation-contracts/function.php ( 0.99 KB )
/yingpanguazai/ssd/ssd1/www/no.rcgz.com.cn/vendor/symfony/polyfill-mbstring/bootstrap.php ( 8.26 KB )
/yingpanguazai/ssd/ssd1/www/no.rcgz.com.cn/vendor/symfony/polyfill-mbstring/bootstrap80.php ( 9.78 KB )
/yingpanguazai/ssd/ssd1/www/no.rcgz.com.cn/vendor/symfony/var-dumper/Resources/functions/dump.php ( 1.49 KB )
/yingpanguazai/ssd/ssd1/www/no.rcgz.com.cn/vendor/topthink/think-dumper/src/helper.php ( 0.18 KB )
/yingpanguazai/ssd/ssd1/www/no.rcgz.com.cn/vendor/symfony/var-dumper/VarDumper.php ( 4.30 KB )
/yingpanguazai/ssd/ssd1/www/no.rcgz.com.cn/vendor/topthink/framework/src/think/App.php ( 15.30 KB )
/yingpanguazai/ssd/ssd1/www/no.rcgz.com.cn/vendor/topthink/think-container/src/Container.php ( 15.76 KB )
/yingpanguazai/ssd/ssd1/www/no.rcgz.com.cn/vendor/psr/container/src/ContainerInterface.php ( 1.02 KB )
/yingpanguazai/ssd/ssd1/www/no.rcgz.com.cn/app/provider.php ( 0.19 KB )
/yingpanguazai/ssd/ssd1/www/no.rcgz.com.cn/vendor/topthink/framework/src/think/Http.php ( 6.04 KB )
/yingpanguazai/ssd/ssd1/www/no.rcgz.com.cn/vendor/topthink/think-helper/src/helper/Str.php ( 7.29 KB )
/yingpanguazai/ssd/ssd1/www/no.rcgz.com.cn/vendor/topthink/framework/src/think/Env.php ( 4.68 KB )
/yingpanguazai/ssd/ssd1/www/no.rcgz.com.cn/app/common.php ( 0.03 KB )
/yingpanguazai/ssd/ssd1/www/no.rcgz.com.cn/vendor/topthink/framework/src/helper.php ( 18.78 KB )
/yingpanguazai/ssd/ssd1/www/no.rcgz.com.cn/vendor/topthink/framework/src/think/Config.php ( 5.54 KB )
/yingpanguazai/ssd/ssd1/www/no.rcgz.com.cn/config/app.php ( 0.95 KB )
/yingpanguazai/ssd/ssd1/www/no.rcgz.com.cn/config/cache.php ( 0.78 KB )
/yingpanguazai/ssd/ssd1/www/no.rcgz.com.cn/config/console.php ( 0.23 KB )
/yingpanguazai/ssd/ssd1/www/no.rcgz.com.cn/config/cookie.php ( 0.56 KB )
/yingpanguazai/ssd/ssd1/www/no.rcgz.com.cn/config/database.php ( 2.48 KB )
/yingpanguazai/ssd/ssd1/www/no.rcgz.com.cn/vendor/topthink/framework/src/think/facade/Env.php ( 1.67 KB )
/yingpanguazai/ssd/ssd1/www/no.rcgz.com.cn/config/filesystem.php ( 0.61 KB )
/yingpanguazai/ssd/ssd1/www/no.rcgz.com.cn/config/lang.php ( 0.91 KB )
/yingpanguazai/ssd/ssd1/www/no.rcgz.com.cn/config/log.php ( 1.35 KB )
/yingpanguazai/ssd/ssd1/www/no.rcgz.com.cn/config/middleware.php ( 0.19 KB )
/yingpanguazai/ssd/ssd1/www/no.rcgz.com.cn/config/route.php ( 1.89 KB )
/yingpanguazai/ssd/ssd1/www/no.rcgz.com.cn/config/session.php ( 0.57 KB )
/yingpanguazai/ssd/ssd1/www/no.rcgz.com.cn/config/trace.php ( 0.34 KB )
/yingpanguazai/ssd/ssd1/www/no.rcgz.com.cn/config/view.php ( 0.82 KB )
/yingpanguazai/ssd/ssd1/www/no.rcgz.com.cn/app/event.php ( 0.25 KB )
/yingpanguazai/ssd/ssd1/www/no.rcgz.com.cn/vendor/topthink/framework/src/think/Event.php ( 7.67 KB )
/yingpanguazai/ssd/ssd1/www/no.rcgz.com.cn/app/service.php ( 0.13 KB )
/yingpanguazai/ssd/ssd1/www/no.rcgz.com.cn/app/AppService.php ( 0.26 KB )
/yingpanguazai/ssd/ssd1/www/no.rcgz.com.cn/vendor/topthink/framework/src/think/Service.php ( 1.64 KB )
/yingpanguazai/ssd/ssd1/www/no.rcgz.com.cn/vendor/topthink/framework/src/think/Lang.php ( 7.35 KB )
/yingpanguazai/ssd/ssd1/www/no.rcgz.com.cn/vendor/topthink/framework/src/lang/zh-cn.php ( 13.70 KB )
/yingpanguazai/ssd/ssd1/www/no.rcgz.com.cn/vendor/topthink/framework/src/think/initializer/Error.php ( 3.31 KB )
/yingpanguazai/ssd/ssd1/www/no.rcgz.com.cn/vendor/topthink/framework/src/think/initializer/RegisterService.php ( 1.33 KB )
/yingpanguazai/ssd/ssd1/www/no.rcgz.com.cn/vendor/services.php ( 0.14 KB )
/yingpanguazai/ssd/ssd1/www/no.rcgz.com.cn/vendor/topthink/framework/src/think/service/PaginatorService.php ( 1.52 KB )
/yingpanguazai/ssd/ssd1/www/no.rcgz.com.cn/vendor/topthink/framework/src/think/service/ValidateService.php ( 0.99 KB )
/yingpanguazai/ssd/ssd1/www/no.rcgz.com.cn/vendor/topthink/framework/src/think/service/ModelService.php ( 2.04 KB )
/yingpanguazai/ssd/ssd1/www/no.rcgz.com.cn/vendor/topthink/think-trace/src/Service.php ( 0.77 KB )
/yingpanguazai/ssd/ssd1/www/no.rcgz.com.cn/vendor/topthink/framework/src/think/Middleware.php ( 6.72 KB )
/yingpanguazai/ssd/ssd1/www/no.rcgz.com.cn/vendor/topthink/framework/src/think/initializer/BootService.php ( 0.77 KB )
/yingpanguazai/ssd/ssd1/www/no.rcgz.com.cn/vendor/topthink/think-orm/src/Paginator.php ( 11.86 KB )
/yingpanguazai/ssd/ssd1/www/no.rcgz.com.cn/vendor/topthink/think-validate/src/Validate.php ( 63.20 KB )
/yingpanguazai/ssd/ssd1/www/no.rcgz.com.cn/vendor/topthink/think-orm/src/Model.php ( 23.55 KB )
/yingpanguazai/ssd/ssd1/www/no.rcgz.com.cn/vendor/topthink/think-orm/src/model/concern/Attribute.php ( 21.05 KB )
/yingpanguazai/ssd/ssd1/www/no.rcgz.com.cn/vendor/topthink/think-orm/src/model/concern/AutoWriteData.php ( 4.21 KB )
/yingpanguazai/ssd/ssd1/www/no.rcgz.com.cn/vendor/topthink/think-orm/src/model/concern/Conversion.php ( 6.44 KB )
/yingpanguazai/ssd/ssd1/www/no.rcgz.com.cn/vendor/topthink/think-orm/src/model/concern/DbConnect.php ( 5.16 KB )
/yingpanguazai/ssd/ssd1/www/no.rcgz.com.cn/vendor/topthink/think-orm/src/model/concern/ModelEvent.php ( 2.33 KB )
/yingpanguazai/ssd/ssd1/www/no.rcgz.com.cn/vendor/topthink/think-orm/src/model/concern/RelationShip.php ( 28.29 KB )
/yingpanguazai/ssd/ssd1/www/no.rcgz.com.cn/vendor/topthink/think-helper/src/contract/Arrayable.php ( 0.09 KB )
/yingpanguazai/ssd/ssd1/www/no.rcgz.com.cn/vendor/topthink/think-helper/src/contract/Jsonable.php ( 0.13 KB )
/yingpanguazai/ssd/ssd1/www/no.rcgz.com.cn/vendor/topthink/think-orm/src/model/contract/Modelable.php ( 0.09 KB )
/yingpanguazai/ssd/ssd1/www/no.rcgz.com.cn/vendor/topthink/framework/src/think/Db.php ( 2.88 KB )
/yingpanguazai/ssd/ssd1/www/no.rcgz.com.cn/vendor/topthink/think-orm/src/DbManager.php ( 8.52 KB )
/yingpanguazai/ssd/ssd1/www/no.rcgz.com.cn/vendor/topthink/framework/src/think/Log.php ( 6.28 KB )
/yingpanguazai/ssd/ssd1/www/no.rcgz.com.cn/vendor/topthink/framework/src/think/Manager.php ( 3.92 KB )
/yingpanguazai/ssd/ssd1/www/no.rcgz.com.cn/vendor/psr/log/src/LoggerTrait.php ( 2.69 KB )
/yingpanguazai/ssd/ssd1/www/no.rcgz.com.cn/vendor/psr/log/src/LoggerInterface.php ( 2.71 KB )
/yingpanguazai/ssd/ssd1/www/no.rcgz.com.cn/vendor/topthink/framework/src/think/Cache.php ( 4.92 KB )
/yingpanguazai/ssd/ssd1/www/no.rcgz.com.cn/vendor/psr/simple-cache/src/CacheInterface.php ( 4.71 KB )
/yingpanguazai/ssd/ssd1/www/no.rcgz.com.cn/vendor/topthink/think-helper/src/helper/Arr.php ( 16.63 KB )
/yingpanguazai/ssd/ssd1/www/no.rcgz.com.cn/vendor/topthink/framework/src/think/cache/driver/File.php ( 7.84 KB )
/yingpanguazai/ssd/ssd1/www/no.rcgz.com.cn/vendor/topthink/framework/src/think/cache/Driver.php ( 9.03 KB )
/yingpanguazai/ssd/ssd1/www/no.rcgz.com.cn/vendor/topthink/framework/src/think/contract/CacheHandlerInterface.php ( 1.99 KB )
/yingpanguazai/ssd/ssd1/www/no.rcgz.com.cn/app/Request.php ( 0.09 KB )
/yingpanguazai/ssd/ssd1/www/no.rcgz.com.cn/vendor/topthink/framework/src/think/Request.php ( 55.78 KB )
/yingpanguazai/ssd/ssd1/www/no.rcgz.com.cn/app/middleware.php ( 0.25 KB )
/yingpanguazai/ssd/ssd1/www/no.rcgz.com.cn/vendor/topthink/framework/src/think/Pipeline.php ( 2.61 KB )
/yingpanguazai/ssd/ssd1/www/no.rcgz.com.cn/vendor/topthink/think-trace/src/TraceDebug.php ( 3.40 KB )
/yingpanguazai/ssd/ssd1/www/no.rcgz.com.cn/vendor/topthink/framework/src/think/middleware/SessionInit.php ( 1.94 KB )
/yingpanguazai/ssd/ssd1/www/no.rcgz.com.cn/vendor/topthink/framework/src/think/Session.php ( 1.80 KB )
/yingpanguazai/ssd/ssd1/www/no.rcgz.com.cn/vendor/topthink/framework/src/think/session/driver/File.php ( 6.27 KB )
/yingpanguazai/ssd/ssd1/www/no.rcgz.com.cn/vendor/topthink/framework/src/think/contract/SessionHandlerInterface.php ( 0.87 KB )
/yingpanguazai/ssd/ssd1/www/no.rcgz.com.cn/vendor/topthink/framework/src/think/session/Store.php ( 7.12 KB )
/yingpanguazai/ssd/ssd1/www/no.rcgz.com.cn/vendor/topthink/framework/src/think/Route.php ( 23.73 KB )
/yingpanguazai/ssd/ssd1/www/no.rcgz.com.cn/vendor/topthink/framework/src/think/route/RuleName.php ( 5.75 KB )
/yingpanguazai/ssd/ssd1/www/no.rcgz.com.cn/vendor/topthink/framework/src/think/route/Domain.php ( 2.53 KB )
/yingpanguazai/ssd/ssd1/www/no.rcgz.com.cn/vendor/topthink/framework/src/think/route/RuleGroup.php ( 22.43 KB )
/yingpanguazai/ssd/ssd1/www/no.rcgz.com.cn/vendor/topthink/framework/src/think/route/Rule.php ( 26.95 KB )
/yingpanguazai/ssd/ssd1/www/no.rcgz.com.cn/vendor/topthink/framework/src/think/route/RuleItem.php ( 9.78 KB )
/yingpanguazai/ssd/ssd1/www/no.rcgz.com.cn/route/app.php ( 1.72 KB )
/yingpanguazai/ssd/ssd1/www/no.rcgz.com.cn/vendor/topthink/framework/src/think/facade/Route.php ( 4.70 KB )
/yingpanguazai/ssd/ssd1/www/no.rcgz.com.cn/vendor/topthink/framework/src/think/route/dispatch/Controller.php ( 4.74 KB )
/yingpanguazai/ssd/ssd1/www/no.rcgz.com.cn/vendor/topthink/framework/src/think/route/Dispatch.php ( 10.44 KB )
/yingpanguazai/ssd/ssd1/www/no.rcgz.com.cn/app/controller/Index.php ( 4.81 KB )
/yingpanguazai/ssd/ssd1/www/no.rcgz.com.cn/app/BaseController.php ( 2.05 KB )
/yingpanguazai/ssd/ssd1/www/no.rcgz.com.cn/vendor/topthink/think-orm/src/facade/Db.php ( 0.93 KB )
/yingpanguazai/ssd/ssd1/www/no.rcgz.com.cn/vendor/topthink/think-orm/src/db/connector/Mysql.php ( 5.44 KB )
/yingpanguazai/ssd/ssd1/www/no.rcgz.com.cn/vendor/topthink/think-orm/src/db/PDOConnection.php ( 52.47 KB )
/yingpanguazai/ssd/ssd1/www/no.rcgz.com.cn/vendor/topthink/think-orm/src/db/Connection.php ( 8.39 KB )
/yingpanguazai/ssd/ssd1/www/no.rcgz.com.cn/vendor/topthink/think-orm/src/db/ConnectionInterface.php ( 4.57 KB )
/yingpanguazai/ssd/ssd1/www/no.rcgz.com.cn/vendor/topthink/think-orm/src/db/builder/Mysql.php ( 16.58 KB )
/yingpanguazai/ssd/ssd1/www/no.rcgz.com.cn/vendor/topthink/think-orm/src/db/Builder.php ( 24.06 KB )
/yingpanguazai/ssd/ssd1/www/no.rcgz.com.cn/vendor/topthink/think-orm/src/db/BaseBuilder.php ( 27.50 KB )
/yingpanguazai/ssd/ssd1/www/no.rcgz.com.cn/vendor/topthink/think-orm/src/db/Query.php ( 15.71 KB )
/yingpanguazai/ssd/ssd1/www/no.rcgz.com.cn/vendor/topthink/think-orm/src/db/BaseQuery.php ( 45.13 KB )
/yingpanguazai/ssd/ssd1/www/no.rcgz.com.cn/vendor/topthink/think-orm/src/db/concern/TimeFieldQuery.php ( 7.43 KB )
/yingpanguazai/ssd/ssd1/www/no.rcgz.com.cn/vendor/topthink/think-orm/src/db/concern/AggregateQuery.php ( 3.26 KB )
/yingpanguazai/ssd/ssd1/www/no.rcgz.com.cn/vendor/topthink/think-orm/src/db/concern/ModelRelationQuery.php ( 20.07 KB )
/yingpanguazai/ssd/ssd1/www/no.rcgz.com.cn/vendor/topthink/think-orm/src/db/concern/ParamsBind.php ( 3.66 KB )
/yingpanguazai/ssd/ssd1/www/no.rcgz.com.cn/vendor/topthink/think-orm/src/db/concern/ResultOperation.php ( 7.01 KB )
/yingpanguazai/ssd/ssd1/www/no.rcgz.com.cn/vendor/topthink/think-orm/src/db/concern/WhereQuery.php ( 19.37 KB )
/yingpanguazai/ssd/ssd1/www/no.rcgz.com.cn/vendor/topthink/think-orm/src/db/concern/JoinAndViewQuery.php ( 7.11 KB )
/yingpanguazai/ssd/ssd1/www/no.rcgz.com.cn/vendor/topthink/think-orm/src/db/concern/TableFieldInfo.php ( 2.63 KB )
/yingpanguazai/ssd/ssd1/www/no.rcgz.com.cn/vendor/topthink/think-orm/src/db/concern/Transaction.php ( 2.77 KB )
/yingpanguazai/ssd/ssd1/www/no.rcgz.com.cn/vendor/topthink/framework/src/think/log/driver/File.php ( 5.96 KB )
/yingpanguazai/ssd/ssd1/www/no.rcgz.com.cn/vendor/topthink/framework/src/think/contract/LogHandlerInterface.php ( 0.86 KB )
/yingpanguazai/ssd/ssd1/www/no.rcgz.com.cn/vendor/topthink/framework/src/think/log/Channel.php ( 3.89 KB )
/yingpanguazai/ssd/ssd1/www/no.rcgz.com.cn/vendor/topthink/framework/src/think/event/LogRecord.php ( 1.02 KB )
/yingpanguazai/ssd/ssd1/www/no.rcgz.com.cn/vendor/topthink/think-helper/src/Collection.php ( 16.47 KB )
/yingpanguazai/ssd/ssd1/www/no.rcgz.com.cn/vendor/topthink/framework/src/think/facade/View.php ( 1.70 KB )
/yingpanguazai/ssd/ssd1/www/no.rcgz.com.cn/vendor/topthink/framework/src/think/View.php ( 4.39 KB )
/yingpanguazai/ssd/ssd1/www/no.rcgz.com.cn/vendor/topthink/framework/src/think/Response.php ( 8.81 KB )
/yingpanguazai/ssd/ssd1/www/no.rcgz.com.cn/vendor/topthink/framework/src/think/response/View.php ( 3.29 KB )
/yingpanguazai/ssd/ssd1/www/no.rcgz.com.cn/vendor/topthink/framework/src/think/Cookie.php ( 6.06 KB )
/yingpanguazai/ssd/ssd1/www/no.rcgz.com.cn/vendor/topthink/think-view/src/Think.php ( 8.38 KB )
/yingpanguazai/ssd/ssd1/www/no.rcgz.com.cn/vendor/topthink/framework/src/think/contract/TemplateHandlerInterface.php ( 1.60 KB )
/yingpanguazai/ssd/ssd1/www/no.rcgz.com.cn/vendor/topthink/think-template/src/Template.php ( 46.61 KB )
/yingpanguazai/ssd/ssd1/www/no.rcgz.com.cn/vendor/topthink/think-template/src/template/driver/File.php ( 2.41 KB )
/yingpanguazai/ssd/ssd1/www/no.rcgz.com.cn/vendor/topthink/think-template/src/template/contract/DriverInterface.php ( 0.86 KB )
/yingpanguazai/ssd/ssd1/www/no.rcgz.com.cn/runtime/temp/598d71c8bdebee7b3f5a319ce5934047.php ( 11.98 KB )
/yingpanguazai/ssd/ssd1/www/no.rcgz.com.cn/vendor/topthink/think-trace/src/Html.php ( 4.42 KB )
CONNECT:[ UseTime:0.000968s ] mysql:host=127.0.0.1;port=3306;dbname=no_rcgz;charset=utf8mb4
SHOW FULL COLUMNS FROM `fenlei` [ RunTime:0.001355s ]
SELECT * FROM `fenlei` WHERE `fid` = 0 [ RunTime:0.000576s ]
SELECT * FROM `fenlei` WHERE `fid` = 63 [ RunTime:0.000520s ]
SHOW FULL COLUMNS FROM `set` [ RunTime:0.001027s ]
SELECT * FROM `set` [ RunTime:0.000375s ]
SHOW FULL COLUMNS FROM `article` [ RunTime:0.001112s ]
SELECT * FROM `article` WHERE `id` = 458210 LIMIT 1 [ RunTime:0.000792s ]
UPDATE `article` SET `lasttime` = 1766587582 WHERE `id` = 458210 [ RunTime:0.005722s ]
SELECT * FROM `fenlei` WHERE `id` = 66 LIMIT 1 [ RunTime:0.000681s ]
SELECT * FROM `article` WHERE `id` < 458210 ORDER BY `id` DESC LIMIT 1 [ RunTime:0.000873s ]
SELECT * FROM `article` WHERE `id` > 458210 ORDER BY `id` ASC LIMIT 1 [ RunTime:0.000765s ]
SELECT * FROM `article` WHERE `id` < 458210 ORDER BY `id` DESC LIMIT 10 [ RunTime:0.001330s ]
SELECT * FROM `article` WHERE `id` < 458210 ORDER BY `id` DESC LIMIT 10,10 [ RunTime:0.011107s ]
SELECT * FROM `article` WHERE `id` < 458210 ORDER BY `id` DESC LIMIT 20,10 [ RunTime:0.017348s ]
0.206221s