房地产
房产中介
装修
新房
当前位置:
首页
>
装修
>🔴邯郸·公园明筑平面优化
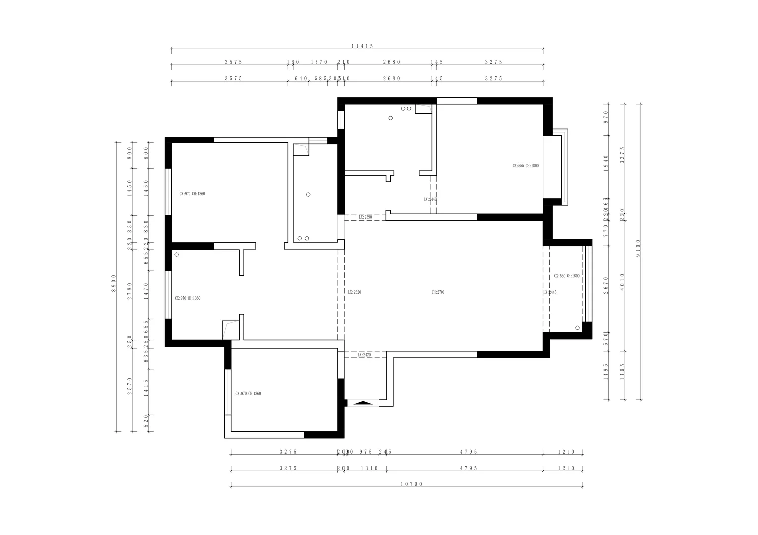
🔴邯郸·公园明筑平面优化
2025-12-15 01:35:07
🔴邯郸·公园明筑平面优化
📍 坐标:河北 · 邯郸
📏 面积: 126㎡(三室两厅)
💡 设计需求: ▪️ 夫妻和8岁男孩,一位老人。日常居住,希望脱离千篇一律的设计,但是不能脱离生活,尽量增加储物空间。
🎨 设计构思: ✨ 核心思路:本案公摊面积较大,需要整合户型中心区域的空间,充分利用,将原有客卫进行调整,将浪费的空间整合利用,主卫缩小,调整主卧床方位,增加储物空间。阳台面积较小,摆脱常规的小户型只将阳台作为家政空间,将家政功能融合在新的卫生间干区,解放阳台!
💖 最后的小心得: 将空间重新结构将会有意想不到的效果!
#户型优化设计
#空间布局优化
#私宅设计
#全案设计
本文来自网友投稿或网络内容,如有侵犯您的权益请联系我们删除,联系邮箱:wyl860211@qq.com 。
成都二手房好消息,坚持到现在才买房的人
怎么起号啊
最新文章
成都二手房好消息,坚持到现在才买房的人
8w装成这样真的尽力了😭
在重庆,首付1颗,月供1000多,小高三房手慢无
2025这已经是二手房,公认的潜规则了!
实景拍摄邯郸租房
买新房交首付前,没搞懂这5点千万别签字!
易县房产
邯郸正远汀兰,现房,小高层,有跃层
太原想买二手房,需要房源,来中介联系!
邯郸的姐妹们,还在为新家装修犯愁吗?
热门文章
石家庄看完这套房,别的房子瞬间不香了😭
实名推荐!我家装了两次的太原装修公司
极简×中式|空间碰撞美到哭!✨🏡
480万拿下北京127㎡一梯一户,清华附中🎒
五得利大厦附近 精装复式
轻高定效果,普通预算怎么实现?
630万 感谢父母全款给我拿 四环新房 地铁
邯郸老装修人,我爸的良心装修!
妈妈的装修审美
搬进保定新家啦,在25岁终于住上了梦中情房
随机文章
10个月宝宝每天需要喝多少奶粉?
邯郸美的天璟业主搭伙装修
感谢南京,原280现130万,一梯两户,洋房现
坐标邯郸 定制终于进场了
二手房中介费3千全包
被这个黑白极简家美到窒息⚫️⚪️
退掉400w新房后 重新装修的老房子
月入5万 沪漂中女二手房中介 形象和头脑
人生第一次装修就装出了Dream house
深圳装修77平全包完工,感谢小红书
感谢顺义房价!之前450现300 三居双卫新房
基本
文件
流程
错误
SQL
调试
请求信息 : 2025-12-26 08:55:27 HTTP/2.0 GET : https://rcgz.com.cn/a/457610.html
运行时间 : 0.221596s [ 吞吐率:4.51req/s ] 内存消耗:4,160.26kb 文件加载:140
缓存信息 : 0 reads,0 writes
会话信息 : SESSION_ID=656389a80e78c623cdb6a82744d1d148
/yingpanguazai/ssd/ssd1/www/no.rcgz.com.cn/public/index.php ( 0.79 KB )
/yingpanguazai/ssd/ssd1/www/no.rcgz.com.cn/vendor/autoload.php ( 0.17 KB )
/yingpanguazai/ssd/ssd1/www/no.rcgz.com.cn/vendor/composer/autoload_real.php ( 2.49 KB )
/yingpanguazai/ssd/ssd1/www/no.rcgz.com.cn/vendor/composer/platform_check.php ( 0.90 KB )
/yingpanguazai/ssd/ssd1/www/no.rcgz.com.cn/vendor/composer/ClassLoader.php ( 14.03 KB )
/yingpanguazai/ssd/ssd1/www/no.rcgz.com.cn/vendor/composer/autoload_static.php ( 4.90 KB )
/yingpanguazai/ssd/ssd1/www/no.rcgz.com.cn/vendor/topthink/think-helper/src/helper.php ( 8.34 KB )
/yingpanguazai/ssd/ssd1/www/no.rcgz.com.cn/vendor/topthink/think-validate/src/helper.php ( 2.19 KB )
/yingpanguazai/ssd/ssd1/www/no.rcgz.com.cn/vendor/topthink/think-orm/src/helper.php ( 1.47 KB )
/yingpanguazai/ssd/ssd1/www/no.rcgz.com.cn/vendor/topthink/think-orm/stubs/load_stubs.php ( 0.16 KB )
/yingpanguazai/ssd/ssd1/www/no.rcgz.com.cn/vendor/topthink/framework/src/think/Exception.php ( 1.69 KB )
/yingpanguazai/ssd/ssd1/www/no.rcgz.com.cn/vendor/topthink/think-container/src/Facade.php ( 2.71 KB )
/yingpanguazai/ssd/ssd1/www/no.rcgz.com.cn/vendor/symfony/deprecation-contracts/function.php ( 0.99 KB )
/yingpanguazai/ssd/ssd1/www/no.rcgz.com.cn/vendor/symfony/polyfill-mbstring/bootstrap.php ( 8.26 KB )
/yingpanguazai/ssd/ssd1/www/no.rcgz.com.cn/vendor/symfony/polyfill-mbstring/bootstrap80.php ( 9.78 KB )
/yingpanguazai/ssd/ssd1/www/no.rcgz.com.cn/vendor/symfony/var-dumper/Resources/functions/dump.php ( 1.49 KB )
/yingpanguazai/ssd/ssd1/www/no.rcgz.com.cn/vendor/topthink/think-dumper/src/helper.php ( 0.18 KB )
/yingpanguazai/ssd/ssd1/www/no.rcgz.com.cn/vendor/symfony/var-dumper/VarDumper.php ( 4.30 KB )
/yingpanguazai/ssd/ssd1/www/no.rcgz.com.cn/vendor/topthink/framework/src/think/App.php ( 15.30 KB )
/yingpanguazai/ssd/ssd1/www/no.rcgz.com.cn/vendor/topthink/think-container/src/Container.php ( 15.76 KB )
/yingpanguazai/ssd/ssd1/www/no.rcgz.com.cn/vendor/psr/container/src/ContainerInterface.php ( 1.02 KB )
/yingpanguazai/ssd/ssd1/www/no.rcgz.com.cn/app/provider.php ( 0.19 KB )
/yingpanguazai/ssd/ssd1/www/no.rcgz.com.cn/vendor/topthink/framework/src/think/Http.php ( 6.04 KB )
/yingpanguazai/ssd/ssd1/www/no.rcgz.com.cn/vendor/topthink/think-helper/src/helper/Str.php ( 7.29 KB )
/yingpanguazai/ssd/ssd1/www/no.rcgz.com.cn/vendor/topthink/framework/src/think/Env.php ( 4.68 KB )
/yingpanguazai/ssd/ssd1/www/no.rcgz.com.cn/app/common.php ( 0.03 KB )
/yingpanguazai/ssd/ssd1/www/no.rcgz.com.cn/vendor/topthink/framework/src/helper.php ( 18.78 KB )
/yingpanguazai/ssd/ssd1/www/no.rcgz.com.cn/vendor/topthink/framework/src/think/Config.php ( 5.54 KB )
/yingpanguazai/ssd/ssd1/www/no.rcgz.com.cn/config/app.php ( 0.95 KB )
/yingpanguazai/ssd/ssd1/www/no.rcgz.com.cn/config/cache.php ( 0.78 KB )
/yingpanguazai/ssd/ssd1/www/no.rcgz.com.cn/config/console.php ( 0.23 KB )
/yingpanguazai/ssd/ssd1/www/no.rcgz.com.cn/config/cookie.php ( 0.56 KB )
/yingpanguazai/ssd/ssd1/www/no.rcgz.com.cn/config/database.php ( 2.48 KB )
/yingpanguazai/ssd/ssd1/www/no.rcgz.com.cn/vendor/topthink/framework/src/think/facade/Env.php ( 1.67 KB )
/yingpanguazai/ssd/ssd1/www/no.rcgz.com.cn/config/filesystem.php ( 0.61 KB )
/yingpanguazai/ssd/ssd1/www/no.rcgz.com.cn/config/lang.php ( 0.91 KB )
/yingpanguazai/ssd/ssd1/www/no.rcgz.com.cn/config/log.php ( 1.35 KB )
/yingpanguazai/ssd/ssd1/www/no.rcgz.com.cn/config/middleware.php ( 0.19 KB )
/yingpanguazai/ssd/ssd1/www/no.rcgz.com.cn/config/route.php ( 1.89 KB )
/yingpanguazai/ssd/ssd1/www/no.rcgz.com.cn/config/session.php ( 0.57 KB )
/yingpanguazai/ssd/ssd1/www/no.rcgz.com.cn/config/trace.php ( 0.34 KB )
/yingpanguazai/ssd/ssd1/www/no.rcgz.com.cn/config/view.php ( 0.82 KB )
/yingpanguazai/ssd/ssd1/www/no.rcgz.com.cn/app/event.php ( 0.25 KB )
/yingpanguazai/ssd/ssd1/www/no.rcgz.com.cn/vendor/topthink/framework/src/think/Event.php ( 7.67 KB )
/yingpanguazai/ssd/ssd1/www/no.rcgz.com.cn/app/service.php ( 0.13 KB )
/yingpanguazai/ssd/ssd1/www/no.rcgz.com.cn/app/AppService.php ( 0.26 KB )
/yingpanguazai/ssd/ssd1/www/no.rcgz.com.cn/vendor/topthink/framework/src/think/Service.php ( 1.64 KB )
/yingpanguazai/ssd/ssd1/www/no.rcgz.com.cn/vendor/topthink/framework/src/think/Lang.php ( 7.35 KB )
/yingpanguazai/ssd/ssd1/www/no.rcgz.com.cn/vendor/topthink/framework/src/lang/zh-cn.php ( 13.70 KB )
/yingpanguazai/ssd/ssd1/www/no.rcgz.com.cn/vendor/topthink/framework/src/think/initializer/Error.php ( 3.31 KB )
/yingpanguazai/ssd/ssd1/www/no.rcgz.com.cn/vendor/topthink/framework/src/think/initializer/RegisterService.php ( 1.33 KB )
/yingpanguazai/ssd/ssd1/www/no.rcgz.com.cn/vendor/services.php ( 0.14 KB )
/yingpanguazai/ssd/ssd1/www/no.rcgz.com.cn/vendor/topthink/framework/src/think/service/PaginatorService.php ( 1.52 KB )
/yingpanguazai/ssd/ssd1/www/no.rcgz.com.cn/vendor/topthink/framework/src/think/service/ValidateService.php ( 0.99 KB )
/yingpanguazai/ssd/ssd1/www/no.rcgz.com.cn/vendor/topthink/framework/src/think/service/ModelService.php ( 2.04 KB )
/yingpanguazai/ssd/ssd1/www/no.rcgz.com.cn/vendor/topthink/think-trace/src/Service.php ( 0.77 KB )
/yingpanguazai/ssd/ssd1/www/no.rcgz.com.cn/vendor/topthink/framework/src/think/Middleware.php ( 6.72 KB )
/yingpanguazai/ssd/ssd1/www/no.rcgz.com.cn/vendor/topthink/framework/src/think/initializer/BootService.php ( 0.77 KB )
/yingpanguazai/ssd/ssd1/www/no.rcgz.com.cn/vendor/topthink/think-orm/src/Paginator.php ( 11.86 KB )
/yingpanguazai/ssd/ssd1/www/no.rcgz.com.cn/vendor/topthink/think-validate/src/Validate.php ( 63.20 KB )
/yingpanguazai/ssd/ssd1/www/no.rcgz.com.cn/vendor/topthink/think-orm/src/Model.php ( 23.55 KB )
/yingpanguazai/ssd/ssd1/www/no.rcgz.com.cn/vendor/topthink/think-orm/src/model/concern/Attribute.php ( 21.05 KB )
/yingpanguazai/ssd/ssd1/www/no.rcgz.com.cn/vendor/topthink/think-orm/src/model/concern/AutoWriteData.php ( 4.21 KB )
/yingpanguazai/ssd/ssd1/www/no.rcgz.com.cn/vendor/topthink/think-orm/src/model/concern/Conversion.php ( 6.44 KB )
/yingpanguazai/ssd/ssd1/www/no.rcgz.com.cn/vendor/topthink/think-orm/src/model/concern/DbConnect.php ( 5.16 KB )
/yingpanguazai/ssd/ssd1/www/no.rcgz.com.cn/vendor/topthink/think-orm/src/model/concern/ModelEvent.php ( 2.33 KB )
/yingpanguazai/ssd/ssd1/www/no.rcgz.com.cn/vendor/topthink/think-orm/src/model/concern/RelationShip.php ( 28.29 KB )
/yingpanguazai/ssd/ssd1/www/no.rcgz.com.cn/vendor/topthink/think-helper/src/contract/Arrayable.php ( 0.09 KB )
/yingpanguazai/ssd/ssd1/www/no.rcgz.com.cn/vendor/topthink/think-helper/src/contract/Jsonable.php ( 0.13 KB )
/yingpanguazai/ssd/ssd1/www/no.rcgz.com.cn/vendor/topthink/think-orm/src/model/contract/Modelable.php ( 0.09 KB )
/yingpanguazai/ssd/ssd1/www/no.rcgz.com.cn/vendor/topthink/framework/src/think/Db.php ( 2.88 KB )
/yingpanguazai/ssd/ssd1/www/no.rcgz.com.cn/vendor/topthink/think-orm/src/DbManager.php ( 8.52 KB )
/yingpanguazai/ssd/ssd1/www/no.rcgz.com.cn/vendor/topthink/framework/src/think/Log.php ( 6.28 KB )
/yingpanguazai/ssd/ssd1/www/no.rcgz.com.cn/vendor/topthink/framework/src/think/Manager.php ( 3.92 KB )
/yingpanguazai/ssd/ssd1/www/no.rcgz.com.cn/vendor/psr/log/src/LoggerTrait.php ( 2.69 KB )
/yingpanguazai/ssd/ssd1/www/no.rcgz.com.cn/vendor/psr/log/src/LoggerInterface.php ( 2.71 KB )
/yingpanguazai/ssd/ssd1/www/no.rcgz.com.cn/vendor/topthink/framework/src/think/Cache.php ( 4.92 KB )
/yingpanguazai/ssd/ssd1/www/no.rcgz.com.cn/vendor/psr/simple-cache/src/CacheInterface.php ( 4.71 KB )
/yingpanguazai/ssd/ssd1/www/no.rcgz.com.cn/vendor/topthink/think-helper/src/helper/Arr.php ( 16.63 KB )
/yingpanguazai/ssd/ssd1/www/no.rcgz.com.cn/vendor/topthink/framework/src/think/cache/driver/File.php ( 7.84 KB )
/yingpanguazai/ssd/ssd1/www/no.rcgz.com.cn/vendor/topthink/framework/src/think/cache/Driver.php ( 9.03 KB )
/yingpanguazai/ssd/ssd1/www/no.rcgz.com.cn/vendor/topthink/framework/src/think/contract/CacheHandlerInterface.php ( 1.99 KB )
/yingpanguazai/ssd/ssd1/www/no.rcgz.com.cn/app/Request.php ( 0.09 KB )
/yingpanguazai/ssd/ssd1/www/no.rcgz.com.cn/vendor/topthink/framework/src/think/Request.php ( 55.78 KB )
/yingpanguazai/ssd/ssd1/www/no.rcgz.com.cn/app/middleware.php ( 0.25 KB )
/yingpanguazai/ssd/ssd1/www/no.rcgz.com.cn/vendor/topthink/framework/src/think/Pipeline.php ( 2.61 KB )
/yingpanguazai/ssd/ssd1/www/no.rcgz.com.cn/vendor/topthink/think-trace/src/TraceDebug.php ( 3.40 KB )
/yingpanguazai/ssd/ssd1/www/no.rcgz.com.cn/vendor/topthink/framework/src/think/middleware/SessionInit.php ( 1.94 KB )
/yingpanguazai/ssd/ssd1/www/no.rcgz.com.cn/vendor/topthink/framework/src/think/Session.php ( 1.80 KB )
/yingpanguazai/ssd/ssd1/www/no.rcgz.com.cn/vendor/topthink/framework/src/think/session/driver/File.php ( 6.27 KB )
/yingpanguazai/ssd/ssd1/www/no.rcgz.com.cn/vendor/topthink/framework/src/think/contract/SessionHandlerInterface.php ( 0.87 KB )
/yingpanguazai/ssd/ssd1/www/no.rcgz.com.cn/vendor/topthink/framework/src/think/session/Store.php ( 7.12 KB )
/yingpanguazai/ssd/ssd1/www/no.rcgz.com.cn/vendor/topthink/framework/src/think/Route.php ( 23.73 KB )
/yingpanguazai/ssd/ssd1/www/no.rcgz.com.cn/vendor/topthink/framework/src/think/route/RuleName.php ( 5.75 KB )
/yingpanguazai/ssd/ssd1/www/no.rcgz.com.cn/vendor/topthink/framework/src/think/route/Domain.php ( 2.53 KB )
/yingpanguazai/ssd/ssd1/www/no.rcgz.com.cn/vendor/topthink/framework/src/think/route/RuleGroup.php ( 22.43 KB )
/yingpanguazai/ssd/ssd1/www/no.rcgz.com.cn/vendor/topthink/framework/src/think/route/Rule.php ( 26.95 KB )
/yingpanguazai/ssd/ssd1/www/no.rcgz.com.cn/vendor/topthink/framework/src/think/route/RuleItem.php ( 9.78 KB )
/yingpanguazai/ssd/ssd1/www/no.rcgz.com.cn/route/app.php ( 1.72 KB )
/yingpanguazai/ssd/ssd1/www/no.rcgz.com.cn/vendor/topthink/framework/src/think/facade/Route.php ( 4.70 KB )
/yingpanguazai/ssd/ssd1/www/no.rcgz.com.cn/vendor/topthink/framework/src/think/route/dispatch/Controller.php ( 4.74 KB )
/yingpanguazai/ssd/ssd1/www/no.rcgz.com.cn/vendor/topthink/framework/src/think/route/Dispatch.php ( 10.44 KB )
/yingpanguazai/ssd/ssd1/www/no.rcgz.com.cn/app/controller/Index.php ( 4.81 KB )
/yingpanguazai/ssd/ssd1/www/no.rcgz.com.cn/app/BaseController.php ( 2.05 KB )
/yingpanguazai/ssd/ssd1/www/no.rcgz.com.cn/vendor/topthink/think-orm/src/facade/Db.php ( 0.93 KB )
/yingpanguazai/ssd/ssd1/www/no.rcgz.com.cn/vendor/topthink/think-orm/src/db/connector/Mysql.php ( 5.44 KB )
/yingpanguazai/ssd/ssd1/www/no.rcgz.com.cn/vendor/topthink/think-orm/src/db/PDOConnection.php ( 52.47 KB )
/yingpanguazai/ssd/ssd1/www/no.rcgz.com.cn/vendor/topthink/think-orm/src/db/Connection.php ( 8.39 KB )
/yingpanguazai/ssd/ssd1/www/no.rcgz.com.cn/vendor/topthink/think-orm/src/db/ConnectionInterface.php ( 4.57 KB )
/yingpanguazai/ssd/ssd1/www/no.rcgz.com.cn/vendor/topthink/think-orm/src/db/builder/Mysql.php ( 16.58 KB )
/yingpanguazai/ssd/ssd1/www/no.rcgz.com.cn/vendor/topthink/think-orm/src/db/Builder.php ( 24.06 KB )
/yingpanguazai/ssd/ssd1/www/no.rcgz.com.cn/vendor/topthink/think-orm/src/db/BaseBuilder.php ( 27.50 KB )
/yingpanguazai/ssd/ssd1/www/no.rcgz.com.cn/vendor/topthink/think-orm/src/db/Query.php ( 15.71 KB )
/yingpanguazai/ssd/ssd1/www/no.rcgz.com.cn/vendor/topthink/think-orm/src/db/BaseQuery.php ( 45.13 KB )
/yingpanguazai/ssd/ssd1/www/no.rcgz.com.cn/vendor/topthink/think-orm/src/db/concern/TimeFieldQuery.php ( 7.43 KB )
/yingpanguazai/ssd/ssd1/www/no.rcgz.com.cn/vendor/topthink/think-orm/src/db/concern/AggregateQuery.php ( 3.26 KB )
/yingpanguazai/ssd/ssd1/www/no.rcgz.com.cn/vendor/topthink/think-orm/src/db/concern/ModelRelationQuery.php ( 20.07 KB )
/yingpanguazai/ssd/ssd1/www/no.rcgz.com.cn/vendor/topthink/think-orm/src/db/concern/ParamsBind.php ( 3.66 KB )
/yingpanguazai/ssd/ssd1/www/no.rcgz.com.cn/vendor/topthink/think-orm/src/db/concern/ResultOperation.php ( 7.01 KB )
/yingpanguazai/ssd/ssd1/www/no.rcgz.com.cn/vendor/topthink/think-orm/src/db/concern/WhereQuery.php ( 19.37 KB )
/yingpanguazai/ssd/ssd1/www/no.rcgz.com.cn/vendor/topthink/think-orm/src/db/concern/JoinAndViewQuery.php ( 7.11 KB )
/yingpanguazai/ssd/ssd1/www/no.rcgz.com.cn/vendor/topthink/think-orm/src/db/concern/TableFieldInfo.php ( 2.63 KB )
/yingpanguazai/ssd/ssd1/www/no.rcgz.com.cn/vendor/topthink/think-orm/src/db/concern/Transaction.php ( 2.77 KB )
/yingpanguazai/ssd/ssd1/www/no.rcgz.com.cn/vendor/topthink/framework/src/think/log/driver/File.php ( 5.96 KB )
/yingpanguazai/ssd/ssd1/www/no.rcgz.com.cn/vendor/topthink/framework/src/think/contract/LogHandlerInterface.php ( 0.86 KB )
/yingpanguazai/ssd/ssd1/www/no.rcgz.com.cn/vendor/topthink/framework/src/think/log/Channel.php ( 3.89 KB )
/yingpanguazai/ssd/ssd1/www/no.rcgz.com.cn/vendor/topthink/framework/src/think/event/LogRecord.php ( 1.02 KB )
/yingpanguazai/ssd/ssd1/www/no.rcgz.com.cn/vendor/topthink/think-helper/src/Collection.php ( 16.47 KB )
/yingpanguazai/ssd/ssd1/www/no.rcgz.com.cn/vendor/topthink/framework/src/think/facade/View.php ( 1.70 KB )
/yingpanguazai/ssd/ssd1/www/no.rcgz.com.cn/vendor/topthink/framework/src/think/View.php ( 4.39 KB )
/yingpanguazai/ssd/ssd1/www/no.rcgz.com.cn/vendor/topthink/framework/src/think/Response.php ( 8.81 KB )
/yingpanguazai/ssd/ssd1/www/no.rcgz.com.cn/vendor/topthink/framework/src/think/response/View.php ( 3.29 KB )
/yingpanguazai/ssd/ssd1/www/no.rcgz.com.cn/vendor/topthink/framework/src/think/Cookie.php ( 6.06 KB )
/yingpanguazai/ssd/ssd1/www/no.rcgz.com.cn/vendor/topthink/think-view/src/Think.php ( 8.38 KB )
/yingpanguazai/ssd/ssd1/www/no.rcgz.com.cn/vendor/topthink/framework/src/think/contract/TemplateHandlerInterface.php ( 1.60 KB )
/yingpanguazai/ssd/ssd1/www/no.rcgz.com.cn/vendor/topthink/think-template/src/Template.php ( 46.61 KB )
/yingpanguazai/ssd/ssd1/www/no.rcgz.com.cn/vendor/topthink/think-template/src/template/driver/File.php ( 2.41 KB )
/yingpanguazai/ssd/ssd1/www/no.rcgz.com.cn/vendor/topthink/think-template/src/template/contract/DriverInterface.php ( 0.86 KB )
/yingpanguazai/ssd/ssd1/www/no.rcgz.com.cn/runtime/temp/598d71c8bdebee7b3f5a319ce5934047.php ( 11.98 KB )
/yingpanguazai/ssd/ssd1/www/no.rcgz.com.cn/vendor/topthink/think-trace/src/Html.php ( 4.42 KB )
CONNECT:[ UseTime:0.001014s ] mysql:host=127.0.0.1;port=3306;dbname=no_rcgz;charset=utf8mb4
SHOW FULL COLUMNS FROM `fenlei` [ RunTime:0.001564s ]
SELECT * FROM `fenlei` WHERE `fid` = 0 [ RunTime:0.000647s ]
SELECT * FROM `fenlei` WHERE `fid` = 63 [ RunTime:0.000593s ]
SHOW FULL COLUMNS FROM `set` [ RunTime:0.001287s ]
SELECT * FROM `set` [ RunTime:0.000445s ]
SHOW FULL COLUMNS FROM `article` [ RunTime:0.001407s ]
SELECT * FROM `article` WHERE `id` = 457610 LIMIT 1 [ RunTime:0.000893s ]
UPDATE `article` SET `lasttime` = 1766710528 WHERE `id` = 457610 [ RunTime:0.019130s ]
SELECT * FROM `fenlei` WHERE `id` = 65 LIMIT 1 [ RunTime:0.002202s ]
SELECT * FROM `article` WHERE `id` < 457610 ORDER BY `id` DESC LIMIT 1 [ RunTime:0.002441s ]
SELECT * FROM `article` WHERE `id` > 457610 ORDER BY `id` ASC LIMIT 1 [ RunTime:0.003913s ]
SELECT * FROM `article` WHERE `id` < 457610 ORDER BY `id` DESC LIMIT 10 [ RunTime:0.001313s ]
SELECT * FROM `article` WHERE `id` < 457610 ORDER BY `id` DESC LIMIT 10,10 [ RunTime:0.008810s ]
SELECT * FROM `article` WHERE `id` < 457610 ORDER BY `id` DESC LIMIT 20,10 [ RunTime:0.001344s ]
0.225403s