房地产
房产中介
装修
新房
当前位置:
首页
>
装修
>恭喜我吧!26岁和心爱的他住进了dream house
恭喜我吧!26岁和心爱的他住进了dream house
2025-12-14 11:16:35
恭喜我吧!26岁和心爱的他住进了dream house
-🏠
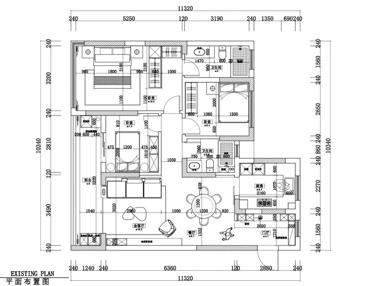
建面105㎡ 套内97㎡
三室一厅 一厨两卫 客餐厅一体
附上平面图给大家参考📝
这个户型的可塑性还是很大的
-
🛋客厅:开间3.37m,砸掉阳台打通客厅后,把阳台包进客厅,让客厅显大有层次感。没有做复杂的背景墙,直接刷大白墙,搭配极简悬浮电视背景既美观还很耐看,再加上4000k的筒灯和灯带增加氛围~
-
按照我们自己的喜好,装修出来的小家
有家了之后,下班了就想回家
周末也不出门宅家也很惬意~
很幸运在26岁和爱的人拥有喜欢的小家~
两人一猫🐱的生活 简单又幸福
@家居薯
@装修薯
#家居作者扶持计划
#换个角度看我家
#我的装修记录
#家的养成计划
#极简
#我在小红书搞装修
#客厅装修灵感库
#家是我的能量场
#家居新趋势
#跟着小红书学装修
#装修灵感库
#我的2025
#长期主义
#家居美学
#年度家居灵感
#欢迎来到我的家
#家居
本文来自网友投稿或网络内容,如有侵犯您的权益请联系我们删除,联系邮箱:wyl860211@qq.com 。
房产中介销冠私藏的找客神器…
慕尼黑租房:出租新房学生合租公寓
最新文章
房产中介销冠私藏的找客神器…
感到幸福的一天啊啊啊!!
全成都二手房不收买方中介费
带地暖次新房|两梯两户小高层 亏60W急售
寻大成都地区二手房中介合作
坐标邯郸‼我就是那个装修神仙工长🔥
邪修卖房|别再傻傻找中介了
邯郸|凤鸣九章|中古法式·凡尔赛不费劲版
万宁市区新房出租
红牌楼地铁房(单间出租)新房(房东直租)
热门文章
【做了多年房产中介,说点真心话💔】这些秘
武汉卖房 房东
长沙143平的家,一梯一户,原220万,现135万出
血泪教训🩸在阳泉,选这家中介前请三思!
老公在石家庄给买的云歌朗樾终于收房了!!!
来个小中介公司的二手房中介
成都买二手房房🏠不收买方中介费啦
求永安市二手房中介
感谢浦东新区,今年500w拿下绝美住宅
买方视角的中介和法拍经历
随机文章
10个月宝宝每天需要喝多少奶粉?
关于我花🌸了398万买了保利光合上城
2025年卖房为何要找中介?
成都卖房,有没有靠谱的成都二手房中介
108万拿下重庆4.0的Dream house!
房产中介销冠的获客开单技巧➕
买房drama—ENTP遇到逼单的卖房中介
宇宙最坏的一群人谁
北京楼市11月魔幻现场🔥二手房排队抢。
如果买卖
求全屋定制认领!坐标:邯郸市
基本
文件
流程
错误
SQL
调试
请求信息 : 2025-12-27 19:56:55 HTTP/2.0 GET : https://rcgz.com.cn/a/457113.html
运行时间 : 0.085809s [ 吞吐率:11.65req/s ] 内存消耗:4,102.93kb 文件加载:140
缓存信息 : 0 reads,0 writes
会话信息 : SESSION_ID=be176ba4224207e4b936f75a23fb1e17
/yingpanguazai/ssd/ssd1/www/no.rcgz.com.cn/public/index.php ( 0.79 KB )
/yingpanguazai/ssd/ssd1/www/no.rcgz.com.cn/vendor/autoload.php ( 0.17 KB )
/yingpanguazai/ssd/ssd1/www/no.rcgz.com.cn/vendor/composer/autoload_real.php ( 2.49 KB )
/yingpanguazai/ssd/ssd1/www/no.rcgz.com.cn/vendor/composer/platform_check.php ( 0.90 KB )
/yingpanguazai/ssd/ssd1/www/no.rcgz.com.cn/vendor/composer/ClassLoader.php ( 14.03 KB )
/yingpanguazai/ssd/ssd1/www/no.rcgz.com.cn/vendor/composer/autoload_static.php ( 4.90 KB )
/yingpanguazai/ssd/ssd1/www/no.rcgz.com.cn/vendor/topthink/think-helper/src/helper.php ( 8.34 KB )
/yingpanguazai/ssd/ssd1/www/no.rcgz.com.cn/vendor/topthink/think-validate/src/helper.php ( 2.19 KB )
/yingpanguazai/ssd/ssd1/www/no.rcgz.com.cn/vendor/topthink/think-orm/src/helper.php ( 1.47 KB )
/yingpanguazai/ssd/ssd1/www/no.rcgz.com.cn/vendor/topthink/think-orm/stubs/load_stubs.php ( 0.16 KB )
/yingpanguazai/ssd/ssd1/www/no.rcgz.com.cn/vendor/topthink/framework/src/think/Exception.php ( 1.69 KB )
/yingpanguazai/ssd/ssd1/www/no.rcgz.com.cn/vendor/topthink/think-container/src/Facade.php ( 2.71 KB )
/yingpanguazai/ssd/ssd1/www/no.rcgz.com.cn/vendor/symfony/deprecation-contracts/function.php ( 0.99 KB )
/yingpanguazai/ssd/ssd1/www/no.rcgz.com.cn/vendor/symfony/polyfill-mbstring/bootstrap.php ( 8.26 KB )
/yingpanguazai/ssd/ssd1/www/no.rcgz.com.cn/vendor/symfony/polyfill-mbstring/bootstrap80.php ( 9.78 KB )
/yingpanguazai/ssd/ssd1/www/no.rcgz.com.cn/vendor/symfony/var-dumper/Resources/functions/dump.php ( 1.49 KB )
/yingpanguazai/ssd/ssd1/www/no.rcgz.com.cn/vendor/topthink/think-dumper/src/helper.php ( 0.18 KB )
/yingpanguazai/ssd/ssd1/www/no.rcgz.com.cn/vendor/symfony/var-dumper/VarDumper.php ( 4.30 KB )
/yingpanguazai/ssd/ssd1/www/no.rcgz.com.cn/vendor/topthink/framework/src/think/App.php ( 15.30 KB )
/yingpanguazai/ssd/ssd1/www/no.rcgz.com.cn/vendor/topthink/think-container/src/Container.php ( 15.76 KB )
/yingpanguazai/ssd/ssd1/www/no.rcgz.com.cn/vendor/psr/container/src/ContainerInterface.php ( 1.02 KB )
/yingpanguazai/ssd/ssd1/www/no.rcgz.com.cn/app/provider.php ( 0.19 KB )
/yingpanguazai/ssd/ssd1/www/no.rcgz.com.cn/vendor/topthink/framework/src/think/Http.php ( 6.04 KB )
/yingpanguazai/ssd/ssd1/www/no.rcgz.com.cn/vendor/topthink/think-helper/src/helper/Str.php ( 7.29 KB )
/yingpanguazai/ssd/ssd1/www/no.rcgz.com.cn/vendor/topthink/framework/src/think/Env.php ( 4.68 KB )
/yingpanguazai/ssd/ssd1/www/no.rcgz.com.cn/app/common.php ( 0.03 KB )
/yingpanguazai/ssd/ssd1/www/no.rcgz.com.cn/vendor/topthink/framework/src/helper.php ( 18.78 KB )
/yingpanguazai/ssd/ssd1/www/no.rcgz.com.cn/vendor/topthink/framework/src/think/Config.php ( 5.54 KB )
/yingpanguazai/ssd/ssd1/www/no.rcgz.com.cn/config/app.php ( 0.95 KB )
/yingpanguazai/ssd/ssd1/www/no.rcgz.com.cn/config/cache.php ( 0.78 KB )
/yingpanguazai/ssd/ssd1/www/no.rcgz.com.cn/config/console.php ( 0.23 KB )
/yingpanguazai/ssd/ssd1/www/no.rcgz.com.cn/config/cookie.php ( 0.56 KB )
/yingpanguazai/ssd/ssd1/www/no.rcgz.com.cn/config/database.php ( 2.48 KB )
/yingpanguazai/ssd/ssd1/www/no.rcgz.com.cn/vendor/topthink/framework/src/think/facade/Env.php ( 1.67 KB )
/yingpanguazai/ssd/ssd1/www/no.rcgz.com.cn/config/filesystem.php ( 0.61 KB )
/yingpanguazai/ssd/ssd1/www/no.rcgz.com.cn/config/lang.php ( 0.91 KB )
/yingpanguazai/ssd/ssd1/www/no.rcgz.com.cn/config/log.php ( 1.35 KB )
/yingpanguazai/ssd/ssd1/www/no.rcgz.com.cn/config/middleware.php ( 0.19 KB )
/yingpanguazai/ssd/ssd1/www/no.rcgz.com.cn/config/route.php ( 1.89 KB )
/yingpanguazai/ssd/ssd1/www/no.rcgz.com.cn/config/session.php ( 0.57 KB )
/yingpanguazai/ssd/ssd1/www/no.rcgz.com.cn/config/trace.php ( 0.34 KB )
/yingpanguazai/ssd/ssd1/www/no.rcgz.com.cn/config/view.php ( 0.82 KB )
/yingpanguazai/ssd/ssd1/www/no.rcgz.com.cn/app/event.php ( 0.25 KB )
/yingpanguazai/ssd/ssd1/www/no.rcgz.com.cn/vendor/topthink/framework/src/think/Event.php ( 7.67 KB )
/yingpanguazai/ssd/ssd1/www/no.rcgz.com.cn/app/service.php ( 0.13 KB )
/yingpanguazai/ssd/ssd1/www/no.rcgz.com.cn/app/AppService.php ( 0.26 KB )
/yingpanguazai/ssd/ssd1/www/no.rcgz.com.cn/vendor/topthink/framework/src/think/Service.php ( 1.64 KB )
/yingpanguazai/ssd/ssd1/www/no.rcgz.com.cn/vendor/topthink/framework/src/think/Lang.php ( 7.35 KB )
/yingpanguazai/ssd/ssd1/www/no.rcgz.com.cn/vendor/topthink/framework/src/lang/zh-cn.php ( 13.70 KB )
/yingpanguazai/ssd/ssd1/www/no.rcgz.com.cn/vendor/topthink/framework/src/think/initializer/Error.php ( 3.31 KB )
/yingpanguazai/ssd/ssd1/www/no.rcgz.com.cn/vendor/topthink/framework/src/think/initializer/RegisterService.php ( 1.33 KB )
/yingpanguazai/ssd/ssd1/www/no.rcgz.com.cn/vendor/services.php ( 0.14 KB )
/yingpanguazai/ssd/ssd1/www/no.rcgz.com.cn/vendor/topthink/framework/src/think/service/PaginatorService.php ( 1.52 KB )
/yingpanguazai/ssd/ssd1/www/no.rcgz.com.cn/vendor/topthink/framework/src/think/service/ValidateService.php ( 0.99 KB )
/yingpanguazai/ssd/ssd1/www/no.rcgz.com.cn/vendor/topthink/framework/src/think/service/ModelService.php ( 2.04 KB )
/yingpanguazai/ssd/ssd1/www/no.rcgz.com.cn/vendor/topthink/think-trace/src/Service.php ( 0.77 KB )
/yingpanguazai/ssd/ssd1/www/no.rcgz.com.cn/vendor/topthink/framework/src/think/Middleware.php ( 6.72 KB )
/yingpanguazai/ssd/ssd1/www/no.rcgz.com.cn/vendor/topthink/framework/src/think/initializer/BootService.php ( 0.77 KB )
/yingpanguazai/ssd/ssd1/www/no.rcgz.com.cn/vendor/topthink/think-orm/src/Paginator.php ( 11.86 KB )
/yingpanguazai/ssd/ssd1/www/no.rcgz.com.cn/vendor/topthink/think-validate/src/Validate.php ( 63.20 KB )
/yingpanguazai/ssd/ssd1/www/no.rcgz.com.cn/vendor/topthink/think-orm/src/Model.php ( 23.55 KB )
/yingpanguazai/ssd/ssd1/www/no.rcgz.com.cn/vendor/topthink/think-orm/src/model/concern/Attribute.php ( 21.05 KB )
/yingpanguazai/ssd/ssd1/www/no.rcgz.com.cn/vendor/topthink/think-orm/src/model/concern/AutoWriteData.php ( 4.21 KB )
/yingpanguazai/ssd/ssd1/www/no.rcgz.com.cn/vendor/topthink/think-orm/src/model/concern/Conversion.php ( 6.44 KB )
/yingpanguazai/ssd/ssd1/www/no.rcgz.com.cn/vendor/topthink/think-orm/src/model/concern/DbConnect.php ( 5.16 KB )
/yingpanguazai/ssd/ssd1/www/no.rcgz.com.cn/vendor/topthink/think-orm/src/model/concern/ModelEvent.php ( 2.33 KB )
/yingpanguazai/ssd/ssd1/www/no.rcgz.com.cn/vendor/topthink/think-orm/src/model/concern/RelationShip.php ( 28.29 KB )
/yingpanguazai/ssd/ssd1/www/no.rcgz.com.cn/vendor/topthink/think-helper/src/contract/Arrayable.php ( 0.09 KB )
/yingpanguazai/ssd/ssd1/www/no.rcgz.com.cn/vendor/topthink/think-helper/src/contract/Jsonable.php ( 0.13 KB )
/yingpanguazai/ssd/ssd1/www/no.rcgz.com.cn/vendor/topthink/think-orm/src/model/contract/Modelable.php ( 0.09 KB )
/yingpanguazai/ssd/ssd1/www/no.rcgz.com.cn/vendor/topthink/framework/src/think/Db.php ( 2.88 KB )
/yingpanguazai/ssd/ssd1/www/no.rcgz.com.cn/vendor/topthink/think-orm/src/DbManager.php ( 8.52 KB )
/yingpanguazai/ssd/ssd1/www/no.rcgz.com.cn/vendor/topthink/framework/src/think/Log.php ( 6.28 KB )
/yingpanguazai/ssd/ssd1/www/no.rcgz.com.cn/vendor/topthink/framework/src/think/Manager.php ( 3.92 KB )
/yingpanguazai/ssd/ssd1/www/no.rcgz.com.cn/vendor/psr/log/src/LoggerTrait.php ( 2.69 KB )
/yingpanguazai/ssd/ssd1/www/no.rcgz.com.cn/vendor/psr/log/src/LoggerInterface.php ( 2.71 KB )
/yingpanguazai/ssd/ssd1/www/no.rcgz.com.cn/vendor/topthink/framework/src/think/Cache.php ( 4.92 KB )
/yingpanguazai/ssd/ssd1/www/no.rcgz.com.cn/vendor/psr/simple-cache/src/CacheInterface.php ( 4.71 KB )
/yingpanguazai/ssd/ssd1/www/no.rcgz.com.cn/vendor/topthink/think-helper/src/helper/Arr.php ( 16.63 KB )
/yingpanguazai/ssd/ssd1/www/no.rcgz.com.cn/vendor/topthink/framework/src/think/cache/driver/File.php ( 7.84 KB )
/yingpanguazai/ssd/ssd1/www/no.rcgz.com.cn/vendor/topthink/framework/src/think/cache/Driver.php ( 9.03 KB )
/yingpanguazai/ssd/ssd1/www/no.rcgz.com.cn/vendor/topthink/framework/src/think/contract/CacheHandlerInterface.php ( 1.99 KB )
/yingpanguazai/ssd/ssd1/www/no.rcgz.com.cn/app/Request.php ( 0.09 KB )
/yingpanguazai/ssd/ssd1/www/no.rcgz.com.cn/vendor/topthink/framework/src/think/Request.php ( 55.78 KB )
/yingpanguazai/ssd/ssd1/www/no.rcgz.com.cn/app/middleware.php ( 0.25 KB )
/yingpanguazai/ssd/ssd1/www/no.rcgz.com.cn/vendor/topthink/framework/src/think/Pipeline.php ( 2.61 KB )
/yingpanguazai/ssd/ssd1/www/no.rcgz.com.cn/vendor/topthink/think-trace/src/TraceDebug.php ( 3.40 KB )
/yingpanguazai/ssd/ssd1/www/no.rcgz.com.cn/vendor/topthink/framework/src/think/middleware/SessionInit.php ( 1.94 KB )
/yingpanguazai/ssd/ssd1/www/no.rcgz.com.cn/vendor/topthink/framework/src/think/Session.php ( 1.80 KB )
/yingpanguazai/ssd/ssd1/www/no.rcgz.com.cn/vendor/topthink/framework/src/think/session/driver/File.php ( 6.27 KB )
/yingpanguazai/ssd/ssd1/www/no.rcgz.com.cn/vendor/topthink/framework/src/think/contract/SessionHandlerInterface.php ( 0.87 KB )
/yingpanguazai/ssd/ssd1/www/no.rcgz.com.cn/vendor/topthink/framework/src/think/session/Store.php ( 7.12 KB )
/yingpanguazai/ssd/ssd1/www/no.rcgz.com.cn/vendor/topthink/framework/src/think/Route.php ( 23.73 KB )
/yingpanguazai/ssd/ssd1/www/no.rcgz.com.cn/vendor/topthink/framework/src/think/route/RuleName.php ( 5.75 KB )
/yingpanguazai/ssd/ssd1/www/no.rcgz.com.cn/vendor/topthink/framework/src/think/route/Domain.php ( 2.53 KB )
/yingpanguazai/ssd/ssd1/www/no.rcgz.com.cn/vendor/topthink/framework/src/think/route/RuleGroup.php ( 22.43 KB )
/yingpanguazai/ssd/ssd1/www/no.rcgz.com.cn/vendor/topthink/framework/src/think/route/Rule.php ( 26.95 KB )
/yingpanguazai/ssd/ssd1/www/no.rcgz.com.cn/vendor/topthink/framework/src/think/route/RuleItem.php ( 9.78 KB )
/yingpanguazai/ssd/ssd1/www/no.rcgz.com.cn/route/app.php ( 1.72 KB )
/yingpanguazai/ssd/ssd1/www/no.rcgz.com.cn/vendor/topthink/framework/src/think/facade/Route.php ( 4.70 KB )
/yingpanguazai/ssd/ssd1/www/no.rcgz.com.cn/vendor/topthink/framework/src/think/route/dispatch/Controller.php ( 4.74 KB )
/yingpanguazai/ssd/ssd1/www/no.rcgz.com.cn/vendor/topthink/framework/src/think/route/Dispatch.php ( 10.44 KB )
/yingpanguazai/ssd/ssd1/www/no.rcgz.com.cn/app/controller/Index.php ( 4.81 KB )
/yingpanguazai/ssd/ssd1/www/no.rcgz.com.cn/app/BaseController.php ( 2.05 KB )
/yingpanguazai/ssd/ssd1/www/no.rcgz.com.cn/vendor/topthink/think-orm/src/facade/Db.php ( 0.93 KB )
/yingpanguazai/ssd/ssd1/www/no.rcgz.com.cn/vendor/topthink/think-orm/src/db/connector/Mysql.php ( 5.44 KB )
/yingpanguazai/ssd/ssd1/www/no.rcgz.com.cn/vendor/topthink/think-orm/src/db/PDOConnection.php ( 52.47 KB )
/yingpanguazai/ssd/ssd1/www/no.rcgz.com.cn/vendor/topthink/think-orm/src/db/Connection.php ( 8.39 KB )
/yingpanguazai/ssd/ssd1/www/no.rcgz.com.cn/vendor/topthink/think-orm/src/db/ConnectionInterface.php ( 4.57 KB )
/yingpanguazai/ssd/ssd1/www/no.rcgz.com.cn/vendor/topthink/think-orm/src/db/builder/Mysql.php ( 16.58 KB )
/yingpanguazai/ssd/ssd1/www/no.rcgz.com.cn/vendor/topthink/think-orm/src/db/Builder.php ( 24.06 KB )
/yingpanguazai/ssd/ssd1/www/no.rcgz.com.cn/vendor/topthink/think-orm/src/db/BaseBuilder.php ( 27.50 KB )
/yingpanguazai/ssd/ssd1/www/no.rcgz.com.cn/vendor/topthink/think-orm/src/db/Query.php ( 15.71 KB )
/yingpanguazai/ssd/ssd1/www/no.rcgz.com.cn/vendor/topthink/think-orm/src/db/BaseQuery.php ( 45.13 KB )
/yingpanguazai/ssd/ssd1/www/no.rcgz.com.cn/vendor/topthink/think-orm/src/db/concern/TimeFieldQuery.php ( 7.43 KB )
/yingpanguazai/ssd/ssd1/www/no.rcgz.com.cn/vendor/topthink/think-orm/src/db/concern/AggregateQuery.php ( 3.26 KB )
/yingpanguazai/ssd/ssd1/www/no.rcgz.com.cn/vendor/topthink/think-orm/src/db/concern/ModelRelationQuery.php ( 20.07 KB )
/yingpanguazai/ssd/ssd1/www/no.rcgz.com.cn/vendor/topthink/think-orm/src/db/concern/ParamsBind.php ( 3.66 KB )
/yingpanguazai/ssd/ssd1/www/no.rcgz.com.cn/vendor/topthink/think-orm/src/db/concern/ResultOperation.php ( 7.01 KB )
/yingpanguazai/ssd/ssd1/www/no.rcgz.com.cn/vendor/topthink/think-orm/src/db/concern/WhereQuery.php ( 19.37 KB )
/yingpanguazai/ssd/ssd1/www/no.rcgz.com.cn/vendor/topthink/think-orm/src/db/concern/JoinAndViewQuery.php ( 7.11 KB )
/yingpanguazai/ssd/ssd1/www/no.rcgz.com.cn/vendor/topthink/think-orm/src/db/concern/TableFieldInfo.php ( 2.63 KB )
/yingpanguazai/ssd/ssd1/www/no.rcgz.com.cn/vendor/topthink/think-orm/src/db/concern/Transaction.php ( 2.77 KB )
/yingpanguazai/ssd/ssd1/www/no.rcgz.com.cn/vendor/topthink/framework/src/think/log/driver/File.php ( 5.96 KB )
/yingpanguazai/ssd/ssd1/www/no.rcgz.com.cn/vendor/topthink/framework/src/think/contract/LogHandlerInterface.php ( 0.86 KB )
/yingpanguazai/ssd/ssd1/www/no.rcgz.com.cn/vendor/topthink/framework/src/think/log/Channel.php ( 3.89 KB )
/yingpanguazai/ssd/ssd1/www/no.rcgz.com.cn/vendor/topthink/framework/src/think/event/LogRecord.php ( 1.02 KB )
/yingpanguazai/ssd/ssd1/www/no.rcgz.com.cn/vendor/topthink/think-helper/src/Collection.php ( 16.47 KB )
/yingpanguazai/ssd/ssd1/www/no.rcgz.com.cn/vendor/topthink/framework/src/think/facade/View.php ( 1.70 KB )
/yingpanguazai/ssd/ssd1/www/no.rcgz.com.cn/vendor/topthink/framework/src/think/View.php ( 4.39 KB )
/yingpanguazai/ssd/ssd1/www/no.rcgz.com.cn/vendor/topthink/framework/src/think/Response.php ( 8.81 KB )
/yingpanguazai/ssd/ssd1/www/no.rcgz.com.cn/vendor/topthink/framework/src/think/response/View.php ( 3.29 KB )
/yingpanguazai/ssd/ssd1/www/no.rcgz.com.cn/vendor/topthink/framework/src/think/Cookie.php ( 6.06 KB )
/yingpanguazai/ssd/ssd1/www/no.rcgz.com.cn/vendor/topthink/think-view/src/Think.php ( 8.38 KB )
/yingpanguazai/ssd/ssd1/www/no.rcgz.com.cn/vendor/topthink/framework/src/think/contract/TemplateHandlerInterface.php ( 1.60 KB )
/yingpanguazai/ssd/ssd1/www/no.rcgz.com.cn/vendor/topthink/think-template/src/Template.php ( 46.61 KB )
/yingpanguazai/ssd/ssd1/www/no.rcgz.com.cn/vendor/topthink/think-template/src/template/driver/File.php ( 2.41 KB )
/yingpanguazai/ssd/ssd1/www/no.rcgz.com.cn/vendor/topthink/think-template/src/template/contract/DriverInterface.php ( 0.86 KB )
/yingpanguazai/ssd/ssd1/www/no.rcgz.com.cn/runtime/temp/598d71c8bdebee7b3f5a319ce5934047.php ( 11.98 KB )
/yingpanguazai/ssd/ssd1/www/no.rcgz.com.cn/vendor/topthink/think-trace/src/Html.php ( 4.42 KB )
CONNECT:[ UseTime:0.000675s ] mysql:host=127.0.0.1;port=3306;dbname=no_rcgz;charset=utf8mb4
SHOW FULL COLUMNS FROM `fenlei` [ RunTime:0.001020s ]
SELECT * FROM `fenlei` WHERE `fid` = 0 [ RunTime:0.000367s ]
SELECT * FROM `fenlei` WHERE `fid` = 63 [ RunTime:0.000278s ]
SHOW FULL COLUMNS FROM `set` [ RunTime:0.000476s ]
SELECT * FROM `set` [ RunTime:0.000163s ]
SHOW FULL COLUMNS FROM `article` [ RunTime:0.000477s ]
SELECT * FROM `article` WHERE `id` = 457113 LIMIT 1 [ RunTime:0.000464s ]
UPDATE `article` SET `lasttime` = 1766836615 WHERE `id` = 457113 [ RunTime:0.005841s ]
SELECT * FROM `fenlei` WHERE `id` = 65 LIMIT 1 [ RunTime:0.000259s ]
SELECT * FROM `article` WHERE `id` < 457113 ORDER BY `id` DESC LIMIT 1 [ RunTime:0.000465s ]
SELECT * FROM `article` WHERE `id` > 457113 ORDER BY `id` ASC LIMIT 1 [ RunTime:0.002695s ]
SELECT * FROM `article` WHERE `id` < 457113 ORDER BY `id` DESC LIMIT 10 [ RunTime:0.000468s ]
SELECT * FROM `article` WHERE `id` < 457113 ORDER BY `id` DESC LIMIT 10,10 [ RunTime:0.003408s ]
SELECT * FROM `article` WHERE `id` < 457113 ORDER BY `id` DESC LIMIT 20,10 [ RunTime:0.000433s ]
0.087443s