房地产
房产中介
装修
新房
当前位置:
首页
>
装修
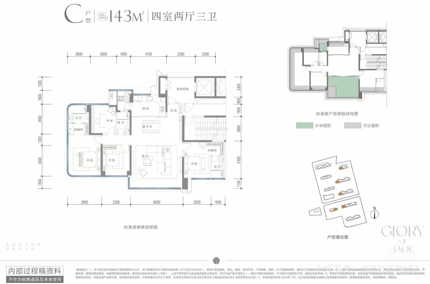
>143㎡新家要开始装修了,主打一个听劝!
143㎡新家要开始装修了,主打一个听劝!
2025-12-03 20:51:09
143㎡新家要开始装修了,主打一个听劝!
全力以父的第一套房,准备明年装修,现在到处看喜欢的风格。
要求:
1、经常在客厅活动所以想要客厅灵活大气一些,想要家里温馨一点
2、家里住的人多需要多一些储蓄的柜子,有强迫症,切不爱收拾,尽量东西都能放在柜子里
3、卧室和书房尽量清爽简洁,主卧不要开门就看到厕所,长辈房床位需要放电视,老公爱玩游戏需要一间电竞房,尽量多一些柜子
目前能想到的大概就这些。
真的是一枚装修小白,有很多不懂的想听听大家的意见!房子是毛坯交付。到底是半包还是全包还是找亲戚推荐的施工队自装,真的不清楚啊啊啊,拜托姐妹们提提意见,我主打听劝!
#装修新手村
#装修小白
#家装坦白局
#装修推荐
#靠谱装修
#新房装修
#装修半包
#一起装修记
#毛坯房装修
#装修指南
本文来自网友投稿或网络内容,如有侵犯您的权益请联系我们删除,联系邮箱:wyl860211@qq.com 。
有房啦~~
廊坊装修公司推荐
最新文章
有房啦~~
张家口130平半包多少钱合理
呼和浩特装修推荐
乌鲁木齐装修
从4月到现在,我家装修花了多少钱❓
藏在城市里的宝藏茶馆
襄陽装修找谁装修才靠谱?
宁波靠谱装修公司求推荐
有没有冬天比较空闲的设计师或者装修团队,
宁德装修党速码!10年老店装家不踩坑💥
热门文章
仁恒151三房,已经买好新房了,接受成交价
大冬天是谁还奋斗在装修第一线上?
封闭空间除醛!变色炭包真的太懂了✅
拜托小白别再过度装修了😱太浪费钱了❗
欧铂丽品质装修🏠9.7w住新家
搞不东。装修这么好的房子伟身份要卖
浙江准备装新房/翻新旧家的宝子看过来❗️
入住一年后
34岁,终于住进了自己喜欢的dream house
广州探店|本地老广装修都去哪看瓷砖?
随机文章
10个月宝宝每天需要喝多少奶粉?
新房装修卧室没有氛围感,求改造🙏很听劝
装修的时候总有人说要找一个好的设计师
新房装修选对开门冰箱还是十字门冰箱,哪个
装修公司:你是同行吧,知道的这么多?
🏠 10号线地铁口|新房首租|房东直租无中介
有准备装修的吗❓来东莞虎门找老王❗❗
4w人抄作业的新房地暖,败给了干燥… 求拯救
不做复杂装修,原木风让家变成治愈系小窝
被问爆的新房除醛神器!三色速蓝石太可了
合肥装修垃圾清运、全合肥清运垃圾、全合肥
基本
文件
流程
错误
SQL
调试
请求信息 : 2025-12-04 04:13:03 HTTP/2.0 GET : https://rcgz.com.cn/a/457074.html
运行时间 : 0.087025s [ 吞吐率:11.49req/s ] 内存消耗:4,105.63kb 文件加载:140
缓存信息 : 0 reads,0 writes
会话信息 : SESSION_ID=75fd0fd81f493deeef8da341f7633275
/yingpanguazai/ssd/ssd1/www/no.rcgz.com.cn/public/index.php ( 0.79 KB )
/yingpanguazai/ssd/ssd1/www/no.rcgz.com.cn/vendor/autoload.php ( 0.17 KB )
/yingpanguazai/ssd/ssd1/www/no.rcgz.com.cn/vendor/composer/autoload_real.php ( 2.49 KB )
/yingpanguazai/ssd/ssd1/www/no.rcgz.com.cn/vendor/composer/platform_check.php ( 0.90 KB )
/yingpanguazai/ssd/ssd1/www/no.rcgz.com.cn/vendor/composer/ClassLoader.php ( 14.03 KB )
/yingpanguazai/ssd/ssd1/www/no.rcgz.com.cn/vendor/composer/autoload_static.php ( 4.90 KB )
/yingpanguazai/ssd/ssd1/www/no.rcgz.com.cn/vendor/topthink/think-helper/src/helper.php ( 8.34 KB )
/yingpanguazai/ssd/ssd1/www/no.rcgz.com.cn/vendor/topthink/think-validate/src/helper.php ( 2.19 KB )
/yingpanguazai/ssd/ssd1/www/no.rcgz.com.cn/vendor/topthink/think-orm/src/helper.php ( 1.47 KB )
/yingpanguazai/ssd/ssd1/www/no.rcgz.com.cn/vendor/topthink/think-orm/stubs/load_stubs.php ( 0.16 KB )
/yingpanguazai/ssd/ssd1/www/no.rcgz.com.cn/vendor/topthink/framework/src/think/Exception.php ( 1.69 KB )
/yingpanguazai/ssd/ssd1/www/no.rcgz.com.cn/vendor/topthink/think-container/src/Facade.php ( 2.71 KB )
/yingpanguazai/ssd/ssd1/www/no.rcgz.com.cn/vendor/symfony/deprecation-contracts/function.php ( 0.99 KB )
/yingpanguazai/ssd/ssd1/www/no.rcgz.com.cn/vendor/symfony/polyfill-mbstring/bootstrap.php ( 8.26 KB )
/yingpanguazai/ssd/ssd1/www/no.rcgz.com.cn/vendor/symfony/polyfill-mbstring/bootstrap80.php ( 9.78 KB )
/yingpanguazai/ssd/ssd1/www/no.rcgz.com.cn/vendor/symfony/var-dumper/Resources/functions/dump.php ( 1.49 KB )
/yingpanguazai/ssd/ssd1/www/no.rcgz.com.cn/vendor/topthink/think-dumper/src/helper.php ( 0.18 KB )
/yingpanguazai/ssd/ssd1/www/no.rcgz.com.cn/vendor/symfony/var-dumper/VarDumper.php ( 4.30 KB )
/yingpanguazai/ssd/ssd1/www/no.rcgz.com.cn/vendor/topthink/framework/src/think/App.php ( 15.30 KB )
/yingpanguazai/ssd/ssd1/www/no.rcgz.com.cn/vendor/topthink/think-container/src/Container.php ( 15.76 KB )
/yingpanguazai/ssd/ssd1/www/no.rcgz.com.cn/vendor/psr/container/src/ContainerInterface.php ( 1.02 KB )
/yingpanguazai/ssd/ssd1/www/no.rcgz.com.cn/app/provider.php ( 0.19 KB )
/yingpanguazai/ssd/ssd1/www/no.rcgz.com.cn/vendor/topthink/framework/src/think/Http.php ( 6.04 KB )
/yingpanguazai/ssd/ssd1/www/no.rcgz.com.cn/vendor/topthink/think-helper/src/helper/Str.php ( 7.29 KB )
/yingpanguazai/ssd/ssd1/www/no.rcgz.com.cn/vendor/topthink/framework/src/think/Env.php ( 4.68 KB )
/yingpanguazai/ssd/ssd1/www/no.rcgz.com.cn/app/common.php ( 0.03 KB )
/yingpanguazai/ssd/ssd1/www/no.rcgz.com.cn/vendor/topthink/framework/src/helper.php ( 18.78 KB )
/yingpanguazai/ssd/ssd1/www/no.rcgz.com.cn/vendor/topthink/framework/src/think/Config.php ( 5.54 KB )
/yingpanguazai/ssd/ssd1/www/no.rcgz.com.cn/config/app.php ( 0.95 KB )
/yingpanguazai/ssd/ssd1/www/no.rcgz.com.cn/config/cache.php ( 0.78 KB )
/yingpanguazai/ssd/ssd1/www/no.rcgz.com.cn/config/console.php ( 0.23 KB )
/yingpanguazai/ssd/ssd1/www/no.rcgz.com.cn/config/cookie.php ( 0.56 KB )
/yingpanguazai/ssd/ssd1/www/no.rcgz.com.cn/config/database.php ( 2.48 KB )
/yingpanguazai/ssd/ssd1/www/no.rcgz.com.cn/vendor/topthink/framework/src/think/facade/Env.php ( 1.67 KB )
/yingpanguazai/ssd/ssd1/www/no.rcgz.com.cn/config/filesystem.php ( 0.61 KB )
/yingpanguazai/ssd/ssd1/www/no.rcgz.com.cn/config/lang.php ( 0.91 KB )
/yingpanguazai/ssd/ssd1/www/no.rcgz.com.cn/config/log.php ( 1.35 KB )
/yingpanguazai/ssd/ssd1/www/no.rcgz.com.cn/config/middleware.php ( 0.19 KB )
/yingpanguazai/ssd/ssd1/www/no.rcgz.com.cn/config/route.php ( 1.89 KB )
/yingpanguazai/ssd/ssd1/www/no.rcgz.com.cn/config/session.php ( 0.57 KB )
/yingpanguazai/ssd/ssd1/www/no.rcgz.com.cn/config/trace.php ( 0.34 KB )
/yingpanguazai/ssd/ssd1/www/no.rcgz.com.cn/config/view.php ( 0.82 KB )
/yingpanguazai/ssd/ssd1/www/no.rcgz.com.cn/app/event.php ( 0.25 KB )
/yingpanguazai/ssd/ssd1/www/no.rcgz.com.cn/vendor/topthink/framework/src/think/Event.php ( 7.67 KB )
/yingpanguazai/ssd/ssd1/www/no.rcgz.com.cn/app/service.php ( 0.13 KB )
/yingpanguazai/ssd/ssd1/www/no.rcgz.com.cn/app/AppService.php ( 0.26 KB )
/yingpanguazai/ssd/ssd1/www/no.rcgz.com.cn/vendor/topthink/framework/src/think/Service.php ( 1.64 KB )
/yingpanguazai/ssd/ssd1/www/no.rcgz.com.cn/vendor/topthink/framework/src/think/Lang.php ( 7.35 KB )
/yingpanguazai/ssd/ssd1/www/no.rcgz.com.cn/vendor/topthink/framework/src/lang/zh-cn.php ( 13.70 KB )
/yingpanguazai/ssd/ssd1/www/no.rcgz.com.cn/vendor/topthink/framework/src/think/initializer/Error.php ( 3.31 KB )
/yingpanguazai/ssd/ssd1/www/no.rcgz.com.cn/vendor/topthink/framework/src/think/initializer/RegisterService.php ( 1.33 KB )
/yingpanguazai/ssd/ssd1/www/no.rcgz.com.cn/vendor/services.php ( 0.14 KB )
/yingpanguazai/ssd/ssd1/www/no.rcgz.com.cn/vendor/topthink/framework/src/think/service/PaginatorService.php ( 1.52 KB )
/yingpanguazai/ssd/ssd1/www/no.rcgz.com.cn/vendor/topthink/framework/src/think/service/ValidateService.php ( 0.99 KB )
/yingpanguazai/ssd/ssd1/www/no.rcgz.com.cn/vendor/topthink/framework/src/think/service/ModelService.php ( 2.04 KB )
/yingpanguazai/ssd/ssd1/www/no.rcgz.com.cn/vendor/topthink/think-trace/src/Service.php ( 0.77 KB )
/yingpanguazai/ssd/ssd1/www/no.rcgz.com.cn/vendor/topthink/framework/src/think/Middleware.php ( 6.72 KB )
/yingpanguazai/ssd/ssd1/www/no.rcgz.com.cn/vendor/topthink/framework/src/think/initializer/BootService.php ( 0.77 KB )
/yingpanguazai/ssd/ssd1/www/no.rcgz.com.cn/vendor/topthink/think-orm/src/Paginator.php ( 11.86 KB )
/yingpanguazai/ssd/ssd1/www/no.rcgz.com.cn/vendor/topthink/think-validate/src/Validate.php ( 63.20 KB )
/yingpanguazai/ssd/ssd1/www/no.rcgz.com.cn/vendor/topthink/think-orm/src/Model.php ( 23.55 KB )
/yingpanguazai/ssd/ssd1/www/no.rcgz.com.cn/vendor/topthink/think-orm/src/model/concern/Attribute.php ( 21.05 KB )
/yingpanguazai/ssd/ssd1/www/no.rcgz.com.cn/vendor/topthink/think-orm/src/model/concern/AutoWriteData.php ( 4.21 KB )
/yingpanguazai/ssd/ssd1/www/no.rcgz.com.cn/vendor/topthink/think-orm/src/model/concern/Conversion.php ( 6.44 KB )
/yingpanguazai/ssd/ssd1/www/no.rcgz.com.cn/vendor/topthink/think-orm/src/model/concern/DbConnect.php ( 5.16 KB )
/yingpanguazai/ssd/ssd1/www/no.rcgz.com.cn/vendor/topthink/think-orm/src/model/concern/ModelEvent.php ( 2.33 KB )
/yingpanguazai/ssd/ssd1/www/no.rcgz.com.cn/vendor/topthink/think-orm/src/model/concern/RelationShip.php ( 28.29 KB )
/yingpanguazai/ssd/ssd1/www/no.rcgz.com.cn/vendor/topthink/think-helper/src/contract/Arrayable.php ( 0.09 KB )
/yingpanguazai/ssd/ssd1/www/no.rcgz.com.cn/vendor/topthink/think-helper/src/contract/Jsonable.php ( 0.13 KB )
/yingpanguazai/ssd/ssd1/www/no.rcgz.com.cn/vendor/topthink/think-orm/src/model/contract/Modelable.php ( 0.09 KB )
/yingpanguazai/ssd/ssd1/www/no.rcgz.com.cn/vendor/topthink/framework/src/think/Db.php ( 2.88 KB )
/yingpanguazai/ssd/ssd1/www/no.rcgz.com.cn/vendor/topthink/think-orm/src/DbManager.php ( 8.52 KB )
/yingpanguazai/ssd/ssd1/www/no.rcgz.com.cn/vendor/topthink/framework/src/think/Log.php ( 6.28 KB )
/yingpanguazai/ssd/ssd1/www/no.rcgz.com.cn/vendor/topthink/framework/src/think/Manager.php ( 3.92 KB )
/yingpanguazai/ssd/ssd1/www/no.rcgz.com.cn/vendor/psr/log/src/LoggerTrait.php ( 2.69 KB )
/yingpanguazai/ssd/ssd1/www/no.rcgz.com.cn/vendor/psr/log/src/LoggerInterface.php ( 2.71 KB )
/yingpanguazai/ssd/ssd1/www/no.rcgz.com.cn/vendor/topthink/framework/src/think/Cache.php ( 4.92 KB )
/yingpanguazai/ssd/ssd1/www/no.rcgz.com.cn/vendor/psr/simple-cache/src/CacheInterface.php ( 4.71 KB )
/yingpanguazai/ssd/ssd1/www/no.rcgz.com.cn/vendor/topthink/think-helper/src/helper/Arr.php ( 16.63 KB )
/yingpanguazai/ssd/ssd1/www/no.rcgz.com.cn/vendor/topthink/framework/src/think/cache/driver/File.php ( 7.84 KB )
/yingpanguazai/ssd/ssd1/www/no.rcgz.com.cn/vendor/topthink/framework/src/think/cache/Driver.php ( 9.03 KB )
/yingpanguazai/ssd/ssd1/www/no.rcgz.com.cn/vendor/topthink/framework/src/think/contract/CacheHandlerInterface.php ( 1.99 KB )
/yingpanguazai/ssd/ssd1/www/no.rcgz.com.cn/app/Request.php ( 0.09 KB )
/yingpanguazai/ssd/ssd1/www/no.rcgz.com.cn/vendor/topthink/framework/src/think/Request.php ( 55.78 KB )
/yingpanguazai/ssd/ssd1/www/no.rcgz.com.cn/app/middleware.php ( 0.25 KB )
/yingpanguazai/ssd/ssd1/www/no.rcgz.com.cn/vendor/topthink/framework/src/think/Pipeline.php ( 2.61 KB )
/yingpanguazai/ssd/ssd1/www/no.rcgz.com.cn/vendor/topthink/think-trace/src/TraceDebug.php ( 3.40 KB )
/yingpanguazai/ssd/ssd1/www/no.rcgz.com.cn/vendor/topthink/framework/src/think/middleware/SessionInit.php ( 1.94 KB )
/yingpanguazai/ssd/ssd1/www/no.rcgz.com.cn/vendor/topthink/framework/src/think/Session.php ( 1.80 KB )
/yingpanguazai/ssd/ssd1/www/no.rcgz.com.cn/vendor/topthink/framework/src/think/session/driver/File.php ( 6.27 KB )
/yingpanguazai/ssd/ssd1/www/no.rcgz.com.cn/vendor/topthink/framework/src/think/contract/SessionHandlerInterface.php ( 0.87 KB )
/yingpanguazai/ssd/ssd1/www/no.rcgz.com.cn/vendor/topthink/framework/src/think/session/Store.php ( 7.12 KB )
/yingpanguazai/ssd/ssd1/www/no.rcgz.com.cn/vendor/topthink/framework/src/think/Route.php ( 23.73 KB )
/yingpanguazai/ssd/ssd1/www/no.rcgz.com.cn/vendor/topthink/framework/src/think/route/RuleName.php ( 5.75 KB )
/yingpanguazai/ssd/ssd1/www/no.rcgz.com.cn/vendor/topthink/framework/src/think/route/Domain.php ( 2.53 KB )
/yingpanguazai/ssd/ssd1/www/no.rcgz.com.cn/vendor/topthink/framework/src/think/route/RuleGroup.php ( 22.43 KB )
/yingpanguazai/ssd/ssd1/www/no.rcgz.com.cn/vendor/topthink/framework/src/think/route/Rule.php ( 26.95 KB )
/yingpanguazai/ssd/ssd1/www/no.rcgz.com.cn/vendor/topthink/framework/src/think/route/RuleItem.php ( 9.78 KB )
/yingpanguazai/ssd/ssd1/www/no.rcgz.com.cn/route/app.php ( 1.72 KB )
/yingpanguazai/ssd/ssd1/www/no.rcgz.com.cn/vendor/topthink/framework/src/think/facade/Route.php ( 4.70 KB )
/yingpanguazai/ssd/ssd1/www/no.rcgz.com.cn/vendor/topthink/framework/src/think/route/dispatch/Controller.php ( 4.74 KB )
/yingpanguazai/ssd/ssd1/www/no.rcgz.com.cn/vendor/topthink/framework/src/think/route/Dispatch.php ( 10.44 KB )
/yingpanguazai/ssd/ssd1/www/no.rcgz.com.cn/app/controller/Index.php ( 4.81 KB )
/yingpanguazai/ssd/ssd1/www/no.rcgz.com.cn/app/BaseController.php ( 2.05 KB )
/yingpanguazai/ssd/ssd1/www/no.rcgz.com.cn/vendor/topthink/think-orm/src/facade/Db.php ( 0.93 KB )
/yingpanguazai/ssd/ssd1/www/no.rcgz.com.cn/vendor/topthink/think-orm/src/db/connector/Mysql.php ( 5.44 KB )
/yingpanguazai/ssd/ssd1/www/no.rcgz.com.cn/vendor/topthink/think-orm/src/db/PDOConnection.php ( 52.47 KB )
/yingpanguazai/ssd/ssd1/www/no.rcgz.com.cn/vendor/topthink/think-orm/src/db/Connection.php ( 8.39 KB )
/yingpanguazai/ssd/ssd1/www/no.rcgz.com.cn/vendor/topthink/think-orm/src/db/ConnectionInterface.php ( 4.57 KB )
/yingpanguazai/ssd/ssd1/www/no.rcgz.com.cn/vendor/topthink/think-orm/src/db/builder/Mysql.php ( 16.58 KB )
/yingpanguazai/ssd/ssd1/www/no.rcgz.com.cn/vendor/topthink/think-orm/src/db/Builder.php ( 24.06 KB )
/yingpanguazai/ssd/ssd1/www/no.rcgz.com.cn/vendor/topthink/think-orm/src/db/BaseBuilder.php ( 27.50 KB )
/yingpanguazai/ssd/ssd1/www/no.rcgz.com.cn/vendor/topthink/think-orm/src/db/Query.php ( 15.71 KB )
/yingpanguazai/ssd/ssd1/www/no.rcgz.com.cn/vendor/topthink/think-orm/src/db/BaseQuery.php ( 45.13 KB )
/yingpanguazai/ssd/ssd1/www/no.rcgz.com.cn/vendor/topthink/think-orm/src/db/concern/TimeFieldQuery.php ( 7.43 KB )
/yingpanguazai/ssd/ssd1/www/no.rcgz.com.cn/vendor/topthink/think-orm/src/db/concern/AggregateQuery.php ( 3.26 KB )
/yingpanguazai/ssd/ssd1/www/no.rcgz.com.cn/vendor/topthink/think-orm/src/db/concern/ModelRelationQuery.php ( 20.07 KB )
/yingpanguazai/ssd/ssd1/www/no.rcgz.com.cn/vendor/topthink/think-orm/src/db/concern/ParamsBind.php ( 3.66 KB )
/yingpanguazai/ssd/ssd1/www/no.rcgz.com.cn/vendor/topthink/think-orm/src/db/concern/ResultOperation.php ( 7.01 KB )
/yingpanguazai/ssd/ssd1/www/no.rcgz.com.cn/vendor/topthink/think-orm/src/db/concern/WhereQuery.php ( 19.37 KB )
/yingpanguazai/ssd/ssd1/www/no.rcgz.com.cn/vendor/topthink/think-orm/src/db/concern/JoinAndViewQuery.php ( 7.11 KB )
/yingpanguazai/ssd/ssd1/www/no.rcgz.com.cn/vendor/topthink/think-orm/src/db/concern/TableFieldInfo.php ( 2.63 KB )
/yingpanguazai/ssd/ssd1/www/no.rcgz.com.cn/vendor/topthink/think-orm/src/db/concern/Transaction.php ( 2.77 KB )
/yingpanguazai/ssd/ssd1/www/no.rcgz.com.cn/vendor/topthink/framework/src/think/log/driver/File.php ( 5.96 KB )
/yingpanguazai/ssd/ssd1/www/no.rcgz.com.cn/vendor/topthink/framework/src/think/contract/LogHandlerInterface.php ( 0.86 KB )
/yingpanguazai/ssd/ssd1/www/no.rcgz.com.cn/vendor/topthink/framework/src/think/log/Channel.php ( 3.89 KB )
/yingpanguazai/ssd/ssd1/www/no.rcgz.com.cn/vendor/topthink/framework/src/think/event/LogRecord.php ( 1.02 KB )
/yingpanguazai/ssd/ssd1/www/no.rcgz.com.cn/vendor/topthink/think-helper/src/Collection.php ( 16.47 KB )
/yingpanguazai/ssd/ssd1/www/no.rcgz.com.cn/vendor/topthink/framework/src/think/facade/View.php ( 1.70 KB )
/yingpanguazai/ssd/ssd1/www/no.rcgz.com.cn/vendor/topthink/framework/src/think/View.php ( 4.39 KB )
/yingpanguazai/ssd/ssd1/www/no.rcgz.com.cn/vendor/topthink/framework/src/think/Response.php ( 8.81 KB )
/yingpanguazai/ssd/ssd1/www/no.rcgz.com.cn/vendor/topthink/framework/src/think/response/View.php ( 3.29 KB )
/yingpanguazai/ssd/ssd1/www/no.rcgz.com.cn/vendor/topthink/framework/src/think/Cookie.php ( 6.06 KB )
/yingpanguazai/ssd/ssd1/www/no.rcgz.com.cn/vendor/topthink/think-view/src/Think.php ( 8.38 KB )
/yingpanguazai/ssd/ssd1/www/no.rcgz.com.cn/vendor/topthink/framework/src/think/contract/TemplateHandlerInterface.php ( 1.60 KB )
/yingpanguazai/ssd/ssd1/www/no.rcgz.com.cn/vendor/topthink/think-template/src/Template.php ( 46.61 KB )
/yingpanguazai/ssd/ssd1/www/no.rcgz.com.cn/vendor/topthink/think-template/src/template/driver/File.php ( 2.41 KB )
/yingpanguazai/ssd/ssd1/www/no.rcgz.com.cn/vendor/topthink/think-template/src/template/contract/DriverInterface.php ( 0.86 KB )
/yingpanguazai/ssd/ssd1/www/no.rcgz.com.cn/runtime/temp/598d71c8bdebee7b3f5a319ce5934047.php ( 11.98 KB )
/yingpanguazai/ssd/ssd1/www/no.rcgz.com.cn/vendor/topthink/think-trace/src/Html.php ( 4.42 KB )
CONNECT:[ UseTime:0.000681s ] mysql:host=127.0.0.1;port=3306;dbname=no_rcgz;charset=utf8mb4
SHOW FULL COLUMNS FROM `fenlei` [ RunTime:0.000896s ]
SELECT * FROM `fenlei` WHERE `fid` = 0 [ RunTime:0.002632s ]
SELECT * FROM `fenlei` WHERE `fid` = 63 [ RunTime:0.000270s ]
SHOW FULL COLUMNS FROM `set` [ RunTime:0.000587s ]
SELECT * FROM `set` [ RunTime:0.000588s ]
SHOW FULL COLUMNS FROM `article` [ RunTime:0.000542s ]
SELECT * FROM `article` WHERE `id` = 457074 LIMIT 1 [ RunTime:0.000407s ]
UPDATE `article` SET `lasttime` = 1764792783 WHERE `id` = 457074 [ RunTime:0.005112s ]
SELECT * FROM `fenlei` WHERE `id` = 65 LIMIT 1 [ RunTime:0.000206s ]
SELECT * FROM `article` WHERE `id` < 457074 ORDER BY `id` DESC LIMIT 1 [ RunTime:0.000414s ]
SELECT * FROM `article` WHERE `id` > 457074 ORDER BY `id` ASC LIMIT 1 [ RunTime:0.001947s ]
SELECT * FROM `article` WHERE `id` < 457074 ORDER BY `id` DESC LIMIT 10 [ RunTime:0.001445s ]
SELECT * FROM `article` WHERE `id` < 457074 ORDER BY `id` DESC LIMIT 10,10 [ RunTime:0.002548s ]
SELECT * FROM `article` WHERE `id` < 457074 ORDER BY `id` DESC LIMIT 20,10 [ RunTime:0.003765s ]
0.088666s